
Турбовозы. История, теория, конструкция

Турбинный локомотив Maffei T18—1002 с конденсацией пара. Фото с сайта «The Self Site: Unusual Steam Locomotives».
Кроме того, благодаря свойственной котлу Бензона эластичности, приспособляемости к режиму и быстрой готовности к работе, достигаемых лёгким управлением, отоплением угольной пылью, новый локомотив приближался по своим качествам к электровозу, против которого машина с собственной силовой установкой обладает тем большим преимуществом, что не зависит от всех случайностей и возможностей повреждений, которые могут иметь место при передаче энергии на расстояние12.
Благодаря ничтожно малым расходам воды турболокомотив высокого давления имеет особое значение для стран, бедных водой. Южная Африка для обслуживания своих пустынных дорог имеет поршневые локомотивы с большими запасами воды, являющимися следовательно мёртвым весом. СССР для обслуживания своих безводных степей был вынужден развивать тепловозостроение. Новый турболокомотив с отоплением углём, угольной пылью или нефтью для этих стран мог иметь серьёзное значение. Если он и не достиг термического коэффициента полезного действия дизель-локомотива, зато превзошёл его своей малой построечной стоимостью и возможностью увеличения мощности.

Турбовоз T18—1002 с размерами. Вид сбоку.


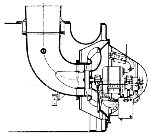
Разрез турбовоза T18—1002 по котлу с размерами (в старом ГОСТе). Вид сбоку.
Локомотив Т18—1002 был доставлен в DRG13 в марте 1929 г. К 1934 г. локомотив прошел 60000 км. Давление пара было 22,7 ат. Несмотря на более высокое давление в котле, он был менее экономичным, чем локомотив Т18—1001 Круппа.
Турбовоз Маффея был отставлен от работы, когда получил повреждения в результате бомбардировки в 1943 г. Его котёл использовался для испытания предохранительного клапана, пока не был утилизирован в 1961 г.
Паровоз завода Henschel с турбинным бустером на тендере. Использование мятого пара поршневых машин для турбин низкого давления до некоторых пор считалось сложным и практически трудноосуществимым, но позднее французская фирма Rateau применила этот метод для модернизации устаревших паромашинных установок14.

Турбина мятого пара, установленная на тендере паровоза Henschel.
Вместе с тем завод Henschel в Касселе (Германия) в сотрудничестве с Цёлли применил этот принцип для модернизации паровозов, взяв для опыта прусский паровоз Р8 (Т38). Паровоз снабжён вентилятором Бетца, благодаря которому высасывались газы из дымовой коробки. Вентилятор укреплён на дымовой дверке и приводился в движение непосредственно от маленькой паровой турбины. Мятый же пар двумя боковыми паропроводами на уровне боковых площадок паровоза при помощи гибких труб отводили в тендер, предварительно пропуская через маслоотделители. Далее он поступал в турбину низкого давления, которая приводила в движение ведущие оси тендера.
Локомотив был построен в 1927 г. Сам паровоз был немного модифицирован с добавлением вентиляторной тяги. Поскольку окончательный выхлоп находился под незначительным давлением, исходную дымовую трубу дымовой камеры пришлось заменить на электрический вытяжной вентилятор в дымовой камере. Замена шарового конуса вытяжным приспособлением и установка маслоотделителей – единственное заметное изменение, которым подвергся существующий паровоз. Бóльшая часть нововведения заключалась в тендере. Превращённый в движущий экипаж, он был оснащён сдвоенными ведущими колёсами по схеме 1-2-2 и нёс на себе, кроме запаса угля и воды, турбину низкого давления переднего и заднего хода с передачей к ведущим осям, конденсатор и всю установку для производства вакуума.
Турбина низкого давления сконструирована с тремя ступенями для переднего хода и с одной ступенью для заднего. Давление от 1,1 до 1,4 ат в паропроводах, соединяющих паровую машину с турбиной, поддерживается при всех нагрузках при помощи регулятора давления.

Регулятор давления паровоза Henschel.
КМ – поступление пара от поршневой машины; VT – проход для пара по трём каналам I, II и III в турбину низкого давления переднего хода; RT – проход для пара к турбине низкого давления заднего хода; V – положение при ходе вперед и R – положение при ходе назад. Когда давление в соединительной трубе слегка увеличивается, цилиндрический золотник открывает последовательно три группы упомянутых каналов I, II и III при помощи масляного сервомотора. Турбина низкого давления переднего хода отделена от турбины заднего хода при помощи двухседельного клапана, не пропускающего пар. При перемене хода с переднего на задний одновременно с перекидкой парораспределения поршневой машины производится перестановка клапана изменения хода турбины низкого давления из положения V в положение R. Вследствие этого цилиндрический золотник закрывает три группы каналов, ведущих в турбину низкого давления переднего хода, и двухседельный клапан начинает отжиматься от своих сёдел концом штока цилиндрического золотника, причём противодействующая этому пружина сжимается, и таким образом канал, ведущий к турбине заднего ходя, оказывается открытым. Предохранительные клапаны, размещённые на маслоотделителях, не дают возможности во всех случаях давлению в соединительной трубе сделаться чрезмерно большим, каковое может, например, иметь место в случае полной выкладки при спущенном рычаге у паровой машины.
Турбина низкого давления, как для переднего, так и для заднего хода, приводилась в движение выхлопным паром среднего давления из исходных цилиндров. Конденсатор в тендере создавал разрежение для выхлопных газов турбины, повышая тепловой к.п.д.
Турбина низкого давления, использующая мятый пар, работала при разрежении 80—85%, что предусматривало наличие конденсатора. В конструкции конденсатора Геншель отошёл от общепринятой формы и создал оригинальную модель, в которой совмещены функции поверхностного холодильника и охладителя воды открытого типа с применением искусственной вентиляции. Этот холодильник надо отнести к холодильникам испарительного типа. Пар из турбины низкого давления протекает по четырём группам труб, размещённых параллельно и находящихся в воздушном потоке. Три пропеллера Бетца, расположенные в крыше тендера, всасывают охлаждающий воздух через конденсатор. Образующийся конденсат и воздух удаляются воздушным насосом, размещённым внизу, а циркуляционный насос создаёт циркуляцию охлаждающей воды и подаёт её из нижней части тендерного бака под холодильником в распределительные трубки над каждой группой труб, в которых течёт пар из турбины низкого давления.

Конденсатор паровоза Henschel.

Турбопоршневой паровоз Т38—3255 с конденсацией пара. Фото с сайта «The Self Site: Unusual Steam Locomotives».
T38 был, по сути, обычным паровозом с поршневым приводом, на котором использовалась вспомогательная турбина низкого давления, установленная на тендере. Турбина, в свою очередь, выпускала пар в конденсатор в задней части тендера, что давало возможность турбине работать эффективнее. Система разработана доктором Цёлли из DRB совместно с производителем Henschel.

Немецкий Henschel T38—2555. Серия производилась в 1927—1938 гг.
Фото с сайта www.yaplakal.com.

Локомотив Т38 с размерами. Вид сбоку. Рисунок с сайта «The Self Site: Unusual Steam Locomotives».
Большой выхлопной канал от турбины к конденсатору необходим для надлежащей эффективности турбины.

Паровоз Т38 без конического носа, который удерживал вытяжной
вентилятор. Фото с сайта «The Self Site: Unusual Steam Locomotives».

Задняя часть турбинного тендера Т38. Фото с сайта «The Self Site: Unusual Steam Locomotives».
Два спаренных движущих колеса, соединённых с валом, видны под передней частью тендера.

Передняя часть турбинного тендера Т38 с размерами. Верхний левый рисунок с сайта «The Self Site: Unusual Steam Locomotives».
В передней части тендера помещались турбина и бункер для угля; в задней части устанавливался конденсатор. Труба внизу справа служит для выхлопа паровой машины локомотива в турбину; большой круглый воздуховод слева – выхлоп турбины в конденсатор.

Поперечное сечение передней части турбинного тендера Т38. Рисунок с сайта «The Self Site: Unusual Steam Locomotives».
Большой круглый воздуховод в центре представляет собой выхлоп турбины в конденсатор, установленный в задней части тендера.


Система вентиляторной тяги паровоза T38. С сайта «The Self Site: Unusual Steam Locomotives».
При атаке на лопатки вентилятора Бетца отработавшие газы поворачиваются на 180° изогнутым входным диффузором, а затем направляются под прямым углом вверх в дымоход. Заглушка большого размера, расположенная сразу за вентилятором, является выходным диффузором для повышения эффективности вентилятора. Большое U-образное углубление над вентилятором содержало, вероятно, нагревательный бак питательной воды.
Как и в обыкновенном поверхностном холодильнике, теплота пара передаётся охлаждающей воде, которая, нагревшись, проходит через охладитель. Вода при своём падении создаёт большую поверхность для поднимающегося вверх тока воздуха и таким образом передаёт последнему свою теплоту. Теплота передаётся как непосредственным нагреванием, так и испарением части воды. Опыты, произведённые с этой конструкцией, показали, что необходимая поверхность охлаждения оказалась не больше той, какая потребовалась бы при поверхностном конденсаторе обычного типа с циркуляцией воды.
Турбина низкого давления с её аттрибутами расположена под угольным ящиком тендера. Вспомогательная турбина, питаемая острым паром и расположенная выше выхлоной трубы турбины низкого давления, служила для приведения в движение питательного насоса, трёх вентиляторов и группы насосов, расположенных внизу и состоящих из конденсатного насоса и циркуляционного.
Паровоз Геншель-Цёлли с бустерным тендером успешно выполнил назначенную серию пробных туров, после чего испытательная станция немецких ж. д. в Грюнвальде детально испытала эту машину. Испытания проводились в конце 1927 г., но результаты не обнадеживали. Были сообщения о том, что чрезмерная мощность терялась из-за сопротивления воздуха в турбине заднего хода, что говорило о недостаточном вакууме конденсатора. Поэтому турбина заднего хода была удалена, поскольку локомотив с поршневым двигателем был вполне способен перемещать поезд задним ходом. Также, похоже, были проблемы с избыточным потреблением пара вспомогательным оборудованием – предположительно различными приводами вентиляторов.
Конец ознакомительного фрагмента.
Текст предоставлен ООО «ЛитРес».
Прочитайте эту книгу целиком, купив полную легальную версию на ЛитРес.
Безопасно оплатить книгу можно банковской картой Visa, MasterCard, Maestro, со счета мобильного телефона, с платежного терминала, в салоне МТС или Связной, через PayPal, WebMoney, Яндекс.Деньги, QIWI Кошелек, бонусными картами или другим удобным Вам способом.
Примечания
1
Первый турболокомотив был построен в Италии в 1908 г. Будучи неконденсационным, он мало отличался от обычного паровоза и потому не получил распространения. В период после первой мировой войны турболокомотивы начинают строиться в Швеции (Юнгстрем, Юнгстрем Байер, Юнгстрем Нидквист и Гольм, Юнгстрем неконденсационный), в Германии (Крупп-Цёлли, Маффей (1924), Геншель, Геншель – комбинированный), в Швейцарии (Цёлли), в Англии (Рэмси, Рейд-Маклауд), За исключением электропередачи в локомотиве Рэмси все остальные имеют механическую зубчатую передачу. В качестве сцепного веса в некоторых турболокомотивах используется вес тендера, в других вес главного экипажа. В турболокомотиве Рейд-Маклауд и Геншель (комбиннрованный) используется вес тендера и самого локомотива. Примечание А.А Чиркова.
2
При коэффициенте сцепления колеса с рельсом 1/5 это соответствует силе тяги по сцеплению, равной 12000 кгс. Примечание А. А. Чиркова.
3
При работе турбины переднего хода вращение турбины обратного хода в вакууме вогнутостям лопаток вперёд вызывает громадную потерю мощности от трения диска о пар и вентиляции (несколько сот лошадиных сил), что заметно понижает относительный коэффициент полезного действия турбины. При заднем ходе однодисковая турбина заднего хода (обычно колесо Кёртиса), вообще имеющая невысокий относительный коэффициент полезного действия, должна проделывать работу трения и вентиляции, вызываемую вращением главной турбины в вакууме. Вполне понятно, что экономичность езды задним ходом весьма низка. По указанию проф. Нордманна расход пара турболокомотивом Круппа при заднем ходе был равен 23 кг/э.л.с.ч. (Z, d.s V. D. I.1030 г. №6. seite 176). Однако конструктивные затруднения с осуществлением зубчатого переключения настолько велики, что большинство строителей турболокомотивов предпочитали всё же первое решение вопроса, мирясь с значительным понижением экономичности. Примечание А. А. Чиркова.
4
Мощность вентиляторной установки в турболокомотиве Юнгстрем Байер около 300 л.с., в то время как у турболокомотива Маффей постройки 1924 г. при оросительном обратном холодильнике она равна ~30 л.с. Примечание А. А. Чиркова.
5
Применено в турболокомотивах Цёлли, Круппа, Маффея (1924). Примечание А. А. Чиркова.
6
Применено в турболокомотивах Геншель, Рейд-Маклауд и Рэмси; кроме того, этот же принцип применён, хотя и в несколько другом виде, в холодильниках советских тепловозов. Однако относительно расположения турбины и конденсатора указание К. Имфельда не совсем точно, так как при холодильниках всех трёх систем обязательно расположение конденсатора и турбины низкого давления на одном экипаже. Это диктуется тем, что создать гибкое соединение между главным экипажем и тендером для отработанного пара при его больших удельных объёмах невозможно. При поверхностных водяных конденсаторах, как это осуществлено в турболокомотивах Цёлли, Kpyппа и др., турбина и конденсатор располагаются на экипаже самого локомотива, а обратный холодильник на тендере, так как устройство гибкого соединения между паровозом и тендером для охлаждающей воды вполне возможно. В турболокомотиве Юнгстрема и др. турбина и поверхностный воздушный конденсатор расположены на тендере. Примечание А. А. Чиркова.
7
Практика уже показала, что в паровозах высокого давления Винтертур и Шмидт наблюдаются расстройства соединения труб с паросборниками; это можно объяснить тем, что при расположении последних наверху при их большом весе при трогании с места и при торможении вызываются большие силы инерции. Примечание А. А. Чиркова.
8
Это утверждение К. Имфельда не совсем верно, так как при отоплении угольной пылью наблюдается сильное образование шлаков на трубчатой поверхности и потому чистка топки неизбежна. Сроки чистки даст конечно только опыт. Примечание А. А. Чиркова.
9
См. выше.
10
По другим данным он построен в 1928 г.
11
При оросительных холодильниках типа Крупп, Маффей (1924) воздух, прогоняемый через дождь охлаждающей воды, увлекает часть воды механически, т. е. в виде капель и брызг, в силу чего это устройство для пассажирских поездов в Европе чрезвычайно нежелательно. Примечание А. А. Чиркова.
12
Не только опасность повреждения передаточных линий является преимуществом локомотивов с собственной силовой установкой. Если сравнивать турболокомотив с электровозом при паровой электроцентрали, то теплотехнически более выгодным будет первый, так как отсутствуют потери на передачу и трансформацию энергии. В случае же гидроэлектроцентрали естественно теплотехническая выгодность на стороне электровозов. Примечание А. А. Чиркова.
13
Deutsche Reichsbahn-Gesellschaft – Общество Германских Имперских железных дорог.
14
Ещё в 1902 г. Рато сделал первые практические применения железо-водяных паровых аккумуляторов в связи с турбинами низкого давления на копях de Bruay, причём установка имела целью использовать выхлопной пар подъёмной машины, работавшей с перерывами, для компенсации которых и потребовались пароаккумуляторы, где колебания давления выхлопного пара получались с 0,9 до 1,15 ат. С той поры такие комбинированные установки получили широкое распространение для утилизации выхлопного пара паровых молотов, прокатных станов, подъёмных рудничных машин и т. д. Одними из ранних комбинаций поршневых машин и паровых турбин низкого давления являются установки на пароходах «Rochambeau» и «L’Olimpic», относящиеся к началу XX в.
Приобретайте полный текст книги у нашего партнера:

