
Баня, сауна: все о строительстве, оборудовании, материалах
♦ от садового дома – 3 м;
♦ от постройки для содержания мелкого скота и птицы – 4 м;
♦ от других построек, например бани, – 1 м;
♦ от стволов высокорослых деревьев – 4 м, среднерослых – 2 м;
♦ от кустарника – 1 м.
Минимальные расстояния между постройками:
♦ от садового дома и погреба до уборной – 12 м;
♦ от душа, бани и сауны до уборной – 8 м;
♦ от колодца до уборной и компостного устройства – 8 м;
♦ от постройки для содержания мелкого скота и птицы до душа, бани, сауны – 12 м;
♦ от погреба до компостного устройства и постройки для содержания мелкого скота и птицы – ум.
Эти нормативы должны соблюдаться как между постройками на одном участке, так и между сооружениями, расположенными на смежных участках.
Что нужно учитывать при создании проекта бани? Прежде всего, идеальное месторасположение бани – отдельно от других строений, на окраине участка, что диктуется пожарными соображениями. Как уже говорилось, ее желательно окружить растительностью, скрывающей сооружение от нескромных взглядов, и разместить рядом с водоемом, пусть даже искусственным (см. рис. 1 на цветной вклейке).
С другой стороны, баню можно пристроить и к жилому сооружению. Сделайте вход в нее непосредственно из дома или со стороны участка, спланируйте небольшую веранду. Если в доме есть канализация и водопровод, то таким образом можно сэкономить средства, да и подключить электропроводку будет не так сложно. Санитарные нормативы используются те же, только необходимо тщательно продумать пожарную безопасность, устройство вентиляции и гидроизоляции строений.
Иногда бани делают в цокольных этажах и подвалах дома. Как правило, в этом случае сталкиваются с дополнительными проблемами, с отводом сточных вод из моечного помещения.
Часто к бане пристраивают сооружения различного назначения, например летнюю кухню или теплицу. Выходящее из парной тепло будет их обогревать. Подобное практиковалось нашими предками уже много веков. Баню также часто используют как прачечную, фотолабораторию и для других хозяйственных нужд. Особенно удобно совмещать ее с тепличным хозяйством. В этом случае к теплице примыкает веранда или терраса, а наличие вьющихся или декоративных растений и цветов создает дополнительный уют и украшение.
Теперь о водоеме, который можно устроить прямо во дворе вашего дома. Небольшой бассейн располагают прямо перед входом в баню или рядом с ним. Выпускается множество видов таких сооружений, и вашей задачей будет всего лишь подготовить для него место. Бассейны бывают разборные, каркасные, монолитные и надувные. Даже если ваш участок совсем небольшой, место для водоема, на радость вашим детям, всегда можно найти.
Повторим, что от разного рода неприятностей, в том числе и от нежелательных «разборок» с соседями, вас застрахуют санитарные нормы и правила (СНиП), которые регламентируют возможное расстояние от вашей бани до соседнего садового участка, колодца или др. Этот документ нужно иметь всем застройщикам, поскольку санитарное согласование планируемых сооружений все равно делать придется, и лучше все учесть еще на этапе создания проекта.
Проектируем баню
Выбор проекта бани зависит прежде всего от предполагаемого числа членов семьи, одновременно посещающих баню, от планировки участка или помещения, приспосабливаемого под баню, и от финансовых возможностей. А вот русскую баню строить или сауну – это уже вопрос вкуса и пристрастий.
Дальше приходит время согласования проекта (естественно, уже на стадии его полной готовности). Но независимо от того, купили вы готовый проект в дизайнерском бюро или нарисовали свой, его нужно согласовать с местной пожарной инстанцией. В этом нет ничего пугающего. Согласование и утверждение проекта занимает, как показывает практика, не больше недели. На чертеже появится печать, и пожарных будет заботить, не является ли ваша баня «пороховой бочкой» ввиду неправильного размещения, например, печи-каменки либо по иной причине, или то, как расположены у вас входы-выходы (чтобы, если что-то случится, парщики смогли мгновенно эвакуироваться).
Это первый этап согласования. Второй, заключительный, будет иметь место, когда строительство завершится. Представитель пожарной службы придет к вам и посмотрит, отвечает ли устройство ваших локальных инженерных сетей требованиям противопожарной безопасности.
Вот и все. С той разницей, что, купив пустой участок и приступив к комплексному строительству, вам придется согласовывать с пожарными все подворье, а в случае, если вы уже обзавелись хозяйством, – только баню.
Итак, переходим к работе над проектом. Размеры, например, русской бревенчатой или каменной бани выбирают из расчета, что в ней одновременно будут париться несколько человек. Чаще всего она состоит из прихожей-тамбура, предбанника (раздевалки) и парной площадью 6–9 м2 для парения и мытья. Целесообразно устраивать баню с отдельным от парной моечным отделением, где можно стирать белье, а также купаться детям и людям, которым парилка противопоказана по состоянию здоровья.
Непосредственно у входа проектируют тамбур. Зимой он должен не давать холодному воздуху проникать в предбанник. Площадь предбанника – 4–6 м2, в нем необходимо сделать окно. Здесь же посетители бани располагаются для охлаждения и отдыха после парилки. Для этого устраивают скамью шириной 0,5 м и длиной 1,5–1,8 м. Дверь из предбанника не должна открываться в парилку, так как пар, попадая в более холодное помещение, увлажняет одежду. Следует сделать так, чтобы двери из парилки и из предбанника выходили в тамбур. Такое расположение позволит более рационально использовать площадь, и главное, все три помещения будут отапливаться одной печью.
Площадь парилки составляет чаще всего 7–9 м2. Ее лучше спроектировать квадратной. Чтобы тепло и пар не терялись, дверь в парильное отделение устраивают с высоким порогом и низкой коробкой, этакий своеобразный люк. Вдоль глухой стены располагают деревянные полки (в два-три яруса), их длина —160–200 см. Печь-каменку, отапливаемую дровами, обычно устанавливают в углу у двери. (Подробнее о печах для бани будет рассказано в одной из следующих глав.) У противоположной стены монтируются скамьи для мытья. Для такого типа бань оптимальным будет размер 2,5 х 4,5 м.
Давайте рассмотрим три примерных банных проекта. Сразу оговорим обязательные условия совмещения банной постройки со всем жилым массивом: качественное выполнение гидроизоляции, продуманная вентиляционная система, грамотное расположение канализации и, разумеется, соблюдение норм противопожарной безопасности. Важно не только устроить комфортабельную баню, но и пользоваться ею так, чтобы не уменьшить ненароком срок службы всего дома, не сделать его сырым. С этой целью, например, не усердствуйте, обильно поливая камни водой, и затем не допускайте их чрезмерного охлаждения. Если баня пристроена к жилому помещению, особенно важно, чтобы воздух в ней был сухим и горячим, а также чтобы по окончании парения баня хорошо высыхала.
Баня, совмещенная с жилым помещением (смежная с кухней). Печь и канализационная система в такой бане будут общими и для нее, и для кухни. Преимущество – раскаленные стены печи-каменки будут регулярно очищать воздух всего жилого пространства, одновременно делая его суше. Еще один плюс – дополнительная вентиляция, осуществляемая через поддувало, расположенное на уровне пола.
Такой вариант может быть вполне комфортным, если соблюдать все санитарно-технические требования, в первую очередь к устройству канализации, вентиляции и гидроизоляции (рис. 2.2). Удобнее всего пристраивать к дому не влажную баню, а сауну.

Рис. 2.2. План небольшой бани
Большая семейная баня. Бревенчатую баню, состоящую из предбанника-раздевалки, моечного отсека и парилки, можно оборудовать П-образной печью, рассчитанной на 6 ведер воды. Вода и камни нагреваются от топки, а моечный отсек – от выведенного в него дымохода.
Классическая схема планировки бани исходит из ее назначения. Если это отдельно стоящее одноэтажное здание, то обычное решение для нее – терраса, небольшой тамбур, в котором оставляют верхнюю одежду, предбанник, иногда совмещаемый с душевой, и парильня (рис. 2.3).
В хороших проектах предусматривается возможность обогрева всех этих помещений одной печью. Если места на участке мало, можно ограничиться совсем простой конструкцией, состоящей из предбанника и парной.

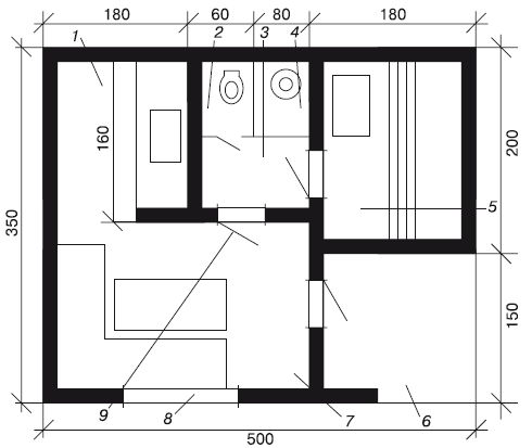
Рис. 2.3. План просторной бани (предбанник и моечная совмещены с санузлом): 1 – кухня; 2 – туалет; 3 – раздевалка; 4 – душевая; 5 – парильня; 6 – веранда; 7 – жилая комната; 8 – окно; 9 – двери
Выбирая материалы для строительства (об этом речь пойдет далее), не стоит, конечно, забывать и о дизайне. Прежде всего он должен соответствовать физиологии человека, ведь, входя в парилку, вы оказываетесь в несвойственной для обычного времяпрепровождения среде, где привычные значения температуры и влажности воздуха изменены во много раз. Потому этот переход нужно сделать мягче, чтобы не вызвать болезненное состояние.
Лишних деталей при проектировании быть не должно. Чем меньше в помещении углов, тем просторней будет казаться баня. В двери, открывающейся в парную, стоит сделать окошко, забранное стеклом: это не только защитит вас от неожиданно пахнувшего горячего воздуха, но и повысит безопасность бани. Если в парной кому-то вдруг станет плохо, его увидят и придут на помощь.
Свет не должен быть слишком ярким и раздражающим, а лавки должны быть подходящей ширины и длины с просветом между досками настила в 1,5–3 см.
Печь нужно расположить так, чтобы никто не ожегся паром из ее устья, а пол (как и что-либо еще в парной) ни в коем случае нельзя покрывать лаком.
Если же вы хотите построить баню-люкс, предусмотрите также специальную комнату для отдыха, где можно посидеть с приятелями, распить по бокальчику пива. Для этого, конечно, можно использовать и предбанник, но тогда его площадь лучше увеличить.
Подбираем материалы
Итак, вы завершили первый этап подготовительных работ – нарисовали проект бани. Далее предстоит провести мысленный переучет и составить подробный список всего, что вам придется купить.
Выбор материалов – очень непростая задача. В данной главе описаны все основные материалы для постройки бани, ну, а дальше решать вам.
Преобладает мнение, освященное столетиями, что лучшая баня – срубленная из хорошо высушенных бревен и досок. Стены из дерева быстрее нагреваются и впитывают влагу. Поэтому в такой бане легче поддерживать нужный температурно-влажностный режим. Да и когда на богатой лесами Руси бани делали из камня?!
Сегодня для строительства бани используют дерево, камень, кирпич, пеноблок, цемент, глину, песок, шифер, древесно-стружечные и древесно-волокнистые плиты, минеральные и органические утеплители, стекла, асбестоцементные трубы, пароизолирующие пленки и листы, кровельное железо и некоторые другие материалы. Подробнее они будут описаны при рассмотрении отдельных конструктивных элементов бани: фундамента, стен, потолка, крыши, печи-каменки.
Все же для тех, кто ранее никогда не сталкивался со строительством довольно крупных сооружений, будет полезно заранее рассказать о некоторых свойствах материалов.
Конец ознакомительного фрагмента.
Текст предоставлен ООО «ЛитРес».
Прочитайте эту книгу целиком, купив полную легальную версию на ЛитРес.
Безопасно оплатить книгу можно банковской картой Visa, MasterCard, Maestro, со счета мобильного телефона, с платежного терминала, в салоне МТС или Связной, через PayPal, WebMoney, Яндекс.Деньги, QIWI Кошелек, бонусными картами или другим удобным Вам способом.
Приобретайте полный текст книги у нашего партнера:

