
Большая книга дачного мастера
Чтобы столб в дальнейшем не просел, на дно ямы насыпают слой песка и щебня, который тщательно утрамбовывают. Песок смачивают водой, чтобы он лучше уплотнялся.
В готовые ямы устанавливают столбы. К угловым столбам прикрепляют подпорки. Если опоры деревянные, ямки засыпают грунтом и утрамбовывают его. Если опоры металлические, для надежности ямки наполовину заливают бетоном, предварительно увлажнив землю. Оставшуюся часть досыпают землей. Бетон застывает в течение суток, на это время строительные работы приостанавливают.
Создание каркаса для крепления сетки. Существует несколько вариантов крепления рабицы к опорным столбам. В принципе, можно обойтись и без каркаса, просто натянув сетку между соседними столбами. Однако такой забор будет ненадежным: под ним легко пролезет и животное, и человек: достаточно приподнять нижний край сетки. Таким образом, лучше соорудить каркас из прожилин, которые могут быть деревянными или металлическими.
В качестве деревянных прожилин используют доску толщиной 30 – 40 мм. Ее крепят к опорным столбам винтами. Недостатки у таких прожилин такие же, что у деревянных столбов: более низкая по сравнению с металлом надежность и долговечность, необходимость в регулярном уходе. Однако у деревянных прожилин есть и преимущества: к ним проще крепить сетку. Достаточно натянуть рабицу между столбами и прибить ее к прожилинам гвоздями или скобами.
Более дорогостоящий и трудоемкий, но вместе с тем надежный и долговечный вариант – прожилины из металлического уголка. Из него сваривают секции размером примерно 1,5 × 2,5 м. Каркасы приваривают между столбами. Сетку также крепят к каркасам электросваркой. Как нетрудно заметить, забор с каркасом из металлического уголка невозможно сделать без электросварочного аппарата и соответствующих навыков.
«Золотая середина» между надежностью и простотой установки – прожилины из проволоки-катанки. Для натягивания сетки в этом случае придется раздобыть натяжное устройство.
Натягивание рабицы. В первую очередь необходимо соединить между собой куски сетки. Для этого из полотна рабицы вывинчивают крайнюю проволоку, торцы двух кусков прикладывают друг к другу, совмещают края и прикручивают крайнюю проволоку обратно, пропуская ее между ячейками обоих кусков. Вместо крайней проволоки из самого полотна рабицы отдельные куски можно соединить прямой проволокой диаметром 6 мм.
Подготовленную таким образом сетку крепят к опорам и каркасу. Если она устойчива к ржавчине (оцинкованная или полимерная), ее можно заглубить в грунт или провести впритык к земле. Черную сетку, уязвимую для коррозии, натягивают на 10 см выше уровня почвы.
К деревянным прожилинам рабицу прибивают гвоздями или скобами. На металлические прожилины ее натягивают с помощью троса с рычагом. Через крайние ячейки сетку насаживают на толстый стальной прут, 2 – 3 раза обматывая вокруг него и фиксируя проволокой. К пруту привязывают трос, с помощью которого натягивают сетку, используя длинную крепкую жердь в качестве рычага.
Натянутую рабицу крепят к столбам с помощью болтов или прикручивают проволокой. К прожилинам ее приматывают мягкой проволокой. Крепления располагают через одинаковые промежутки. Края рабицы крепят к опорным столбам, несколько раз обматывая вокруг опор мягкую проволоку.
Работают поэтапно, переходя от одной секции забора к другой. Сначала крепят рабицу к первому столбу, затем разматывают рулон, туго натягивают сетку и крепят ее к следующему.
Окраска рабицы. Оцинкованную или полимерную сетку можно не красить. Черную сетку обязательно нужно покрасить, чтобы защитить от ржавчины. Для работы понадобится обычная малярная кисть. Окрасить тонкую, переплетенную, круглую в сечении проволоку валиком невозможно, а из пульверизатора краска будет разбрызгиваться через ячейки, так что на саму проволоку попадет лишь малая часть, а расход материала будет огромным.
3
Утепление летнего дома

Глава 1. Утепляем стены
Поскольку самое большое количество тепла уходит через стены, поэтому в первую очередь речь пойдет о них.
В настоящее время на строительных рынках и в магазинах представлено огромное количество разнообразных видов теплоизоляционных материалов. Возникает вопрос: как же правильно утеплить стены дома?
Для начала необходимо правильно подобрать материал, обратив внимание в первую очередь на его плотность и группу горючести. Идеальным вариантом является негорючий утеплитель группы НГ, при этом толщина требуемого изоляционного слоя напрямую зависит от климатической зоны проживания.
Далее необходимо решить, как будет выполнено утепление: с внешней стороны здания или изнутри. Если выбран второй вариант, необходимо использовать безопасный для здоровья материал, при этом он должен быть негорючим и обладать невысокой плотностью. Таким образом, для внутридомового утепления как нельзя лучше подходит базальтовая изоляция. При проведении наружных работ потребуется материал более высокой плотности, например, из экструдированного пенополистирола.
Довольно часто при выборе утеплителя главным плюсом считают плотность материала. Тем не менее, данный подход неверен, поскольку материалы могут быть одинаковой плотности, но при этом иметь разную теплопроводность. Поэтому при выборе материала в первую очередь следует обращать внимание на теплотехнические и механические характеристики утеплителя.
Итак, наиболее важные характеристики теплоизоляционного материала следующие:
• теплопроводность;
• эластичность, прочность на сжатие;
• упругость, или способность утеплителя сгибаться, не сломавшись, и восстанавливать первоначальную форму при монтаже;
• условия монтажа, или рекомендуемые конкретным производителем способы установки утеплителя.
В настоящее время применяют 3 варианта утепления стен здания.
1. Размещение утеплителя с внутренней стороны стены. У метода есть свои преимущества: он удобен в исполнении, поскольку теплоизоляционные работы в помещении можно провести и в холодное время года. В процессе работы можно использовать самые различные материалы, и наружная отделка здания будет сохранена. К недостаткам такого варианта утепления относится то, что полезная площадь неизбежно сократится; возможно, возрастет влажность несущей конструкции, потому что водяные пары легко проникают через утеплитель, а затем скапливаются на границе между ним и холодной стеной. Между тем утеплитель затормозит проникновение тепла из помещения в стену, что приведет к переувлажнению конструкции и, следовательно, ее разрушению.
Если монтирование утеплителя возможно только изнутри здания, то следует подумать о защите стены от воздействия влаги: установить пароизоляцию со стороны помещения или достаточно эффективную вентиляцию воздуха.
2. Размещение утеплителя с наружной стороны стены здания. Преимущества данного метода следующие: зона конденсации выходящих паров оказывается за пределами несущей стены дома – в утеплителе. При этом паропроницаемые материалы, используемые для утепления стен, дают влаге испариться. Это помогает снизить влажность стен и увеличить срок эксплуатации несущей конструкции дома.
Теплоизоляция не дает тепловому потоку уйти от стены наружу, что приводит к повышению температуры несущей конструкции. Монтирование теплоизоляционного материала снаружи здания защищает стену от замораживания зимой и оттаивания весной, снижает температурные колебания, что тоже способствует долговечности несущей конструкции.
Тем не менее, недостатки у этого способа также есть: конденсат проникает внутрь утеплителя, что повышает его влажность, поэтому требуется использовать утеплители с высокой паропроницаемостью, влага из которых будет быстро испаряться.
Теплоизоляцию, монтирующуюся снаружи здания, требуется защищать от атмосферных осадков и механических воздействий, для чего потребуется прочное паропроницаемое покрытие: устройство вентилируемого фасада либо оштукатуривание.
3. Размещение теплоизоляционного материала внутри стены (многослойные конструкции). При данном способе утеплитель помещают с наружной стороны стены, а затем обкладывают облицовочным кирпичом. Такая многослойная стена хорошо подходит для строящегося дома, но если здание уже построено, выполнить подобную изоляцию трудно, потому что это приведет к увеличению толщины всей конструкции, а значит, может потребоваться переделка фундамента.
Поэтому, посмотрев на все плюсы и минусы каждого способа размещения теплоизоляционного материала, можно сразу сделать вывод, что наружное утепление стен является самым рациональным и удобным с любой точки зрения.
Итак, существует несколько способов наружной теплоизоляции стен.
Слоистая кладка
Конструкция включает три слоя: несущая стена, стена из облицовочного материала и утеплитель, находящийся между ними (рис. 33).

Рис. 33. Устройство слоистой кладки: 1 – несущая стена, 2 – теплоизоляция, 3 – облицовочный слой, 4 – закладные детали (связи), 5 – воздушный зазор
Наружный слой слоистой кладки – это, как правило, либо облицовочный, либо строительный кирпич, который затем оштукатуривают, покрывают искусственным камнем или другим отделочным материалом.
Выбор теплоизоляционного материала
Обычно при таком способе в качестве теплоизоляционного материала используют плиты из минеральной ваты на основе каменного или штапельного стекловолокна, пенополистирола. Поскольку они имеют похожие характеристики теплопроводности, то независимо от выбранного типа утеплителя толщина изоляционного слоя будет одинаковой.
Следует отдавать предпочтение волокнистым материалам, поскольку в отличие от пенополистирольных они негорючие, а самый главный их плюс – эластичность, что при монтаже позволит плотнее прижать их к стене. Утеплитель должен прилегать к стене плотно, иначе через воздушные карманы из здания будет утекать тепло, и выполненные работы окажутся неэффективными. Нежелательно применение пенополистирола в слоистых кладках еще и вследствие его низкой паропроницаемости. Тем не менее, пенополистирол дешевле минеральной ваты почти в 4 раза, и нередко это является решающим моментом при выборе теплоизоляционного материала.
Когда мы говорим «стена дышит», это не значит, что сам материал, из которого она изготовлена, обладает таким свойством. Стена, даже с высокой паропроницаемостью, никак не влияет на воздухообмен и регуляцию влажности в помещении. Только вентиляция может обеспечивать влагорегуляцию.
Достоинства слоистой кладки: красивый внешний вид здания при применении дорогостоящих облицовочных материалов, долговечность при правильном проектировании и квалифицированном монтаже конструкции. Выполнение двух последних условий часто затруднено: важно, чтобы все слои фасада не только имели высокие показатели по паропроницаемости, водопоглощению, тепловому расширению и морозостойкости, но и гармонировали между собой по этим показателям.
Сочетаемость можно обеспечить, только рассчитав всю систему в целом. Важно, чтобы каждый последующий слой (изнутри наружу) пропускал пар лучше, чем предыдущий. Ведь если у него на пути будет препятствие, то образование конденсата в толще ограждающей конструкции неизбежно.
Если это обстоятельство не учитывается, то использование, к примеру, минераловатного утеплителя, обладающего замечательной паропроницаемостью, и полимерной декоративной штукатурки, плохо пропускающей пар, в итоге приведет к отслаиванию внешнего слоя. Если же, например, стена состоит из пеноблоков, затем идет волокнистый утеплитель, а после него – облицовочный кирпич, то произойдет следующее: паропроницаемость пеноблоков высока, у утеплителя этот показатель еще выше, а у облицовочных кирпичей намного меньше. В результате чаще всего на внутренней поверхности стены из лицевого кирпича образуется конденсат, поскольку зимой она подвергается воздействию отрицательных температур. Влага накапливается в нижней части кладки, со временем разрушая кирпичи нижних рядов. Утеплитель намокает, что приводит к сокращению его срока службы и снижению теплозащитных свойств. Ограждающая конструкция начнет промерзать, что в результате повлечет неэффективность утепления, деформацию отделки помещения, постепенное смещение зоны выпадения конденсата в толщу несущей стены и вызовет ее преждевременное разрушение. Чтобы избежать подобных негативных ситуаций, специалисты не рекомендуют использовать дешевые, незнакомые либо вовсе нерекомендованные производителем материалы, поскольку это пагубно скажется на качестве утепления и сроке службы всей конструкции.
Нельзя прокладывать между деревянной несущей стеной и утеплителем пароизолирующую пленку, так как это приведет к выпадению конденсата на поверхности дерева и появлению плесени и гнили. Утеплитель должен плотно прилегать к древесине без воздушных карманов. У рубленой стены следует заложить в пазы полосы утеплителя. Изнутри ее требуется пароизолировать, чтобы влага из теплого помещения не проникала внутрь конструкции стены.
Проблема паропереноса актуальна для слоистой кладки с утеплителем любого типа, поэтому необходимо организовать воздушную прослойку между утеплителем и наружной стеной и оставить в нижней и верхней частях кладки ряд отверстий диаметром около 1 см (не заполненный раствором шов), для притока и вытяжки воздуха.
Этапы работы
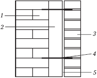
Общая схема утепления такова: несущую стену, например, состоящую из силикатного кирпича, и наружный слой из облицовочного кирпича соединяют с помощью закладных деталей, выполненных из металлического или стеклопластикового прутка 4,5 – 6 мм. Такие связи также закрепляют плиты утеплителя. Их устанавливают в процессе кладки на глубину 6 – 8 см с шагом 60 см по горизонтали и 50 см по вертикали из расчета в среднем 4 штыря на 1 м2 в несущую стену (рис. 34).

Рис. 34. Установка связей между внутренней и наружной стенками в трехслойной стене: а) вид прямо; б) разрез
Рекомендуется выбрать связи из стекло– или базальтопластика, поскольку стальные связи проводят холод в стену, на них образовывается конденсат, и через какое-то время они неизбежно ржавеют. При этом связи обязательно должны иметь слезник для отвода воды.
Когда прутки в несущей стене закреплены, на них вразбежку устанавливают теплоизоляционные плиты, а на углах дома формируют зубчатое зацепление плит, чтобы препятствовать образованию мостиков холода (рис. 35).
После этого пластиковые фиксаторы, которые обеспечивают равномерный вентилируемый зазор по всей площади утеплителя, крепят на прутки. Ширина воздушной прослойки составляет 25 – 40 мм. На таком расстоянии от утеплителя устраивают самонесущую облицовочную стенку, которая должна опираться на фундамент до высоты 6 – 7 м от уровня земли, а затем – на специальный несущий пояс (рис. 36).

Рис. 35. Схема укладки утеплителя: 1 – несущая стена; 2 – теплоизоляционные плиты; 3 – Т-образные стыки плит при укладке вразбежку; 4 – зубчатое зацепление плит в углах здания

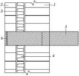
Рис. 36. Устройство несущих поясов в защитно-декоративной стенке: 1 – внутренняя часть стены; 2 – наружная защитно-декоративная кладка толщиной 120 мм; 3 – воздушный зазор; 4 – теплоизоляционные плиты; 5 – несущая балка-пояс; 6 – мастика
Чтобы ликвидировать мостик холода в зоне несущей балки-пояса, в ней проделывают специальные отверстия, заполняемые теплоизоляционным материалом. В шов между кладкой и несущей балкой-поясом устанавливают трубчатую уплотняющую прокладку из вспененного полиэтилена диаметром 30 мм и заделывают мастикой.
Для устройства вентиляции прослойки в верхней и нижней части наружного слоя проделывают отверстия общей площадью 150 см2 на каждые 20 м2 стены. Для этого каждый 3 – 4-й вертикальный шов в кладке в соответствующем ряду оставляют без раствора. Нижние отверстия в кладке выполняются не только для вентиляции, но и для отвода воды.
Пенополистироловые плиты с рифленой поверхностью крепят рифлением к стене. Они отлично подходят для теплоизоляции и отвода влаги. При этом идеально, когда длина плит соответствует высоте фасада. Короткие же плиты монтируют так, чтобы гребни и бороздки на них совпадали.
Условные обозначения, которые присутствуют в технических описаниях, позволяют узнать о горючести, воспламеняемости, жесткости, химической стойкости и экологической чистоте материала, поэтому при покупке важно обратить на них внимание.
Бороздки образуют воздушный зазор, который позволяет отводить влагу наружу и сохранять обшивку в сухом состоянии. При этом по воздушному зазору должен свободно проходить воздух, поэтому не стоит забывать монтировать цокольный профиль с отверстиями, которые обеспечивают приток воздуха снизу, а также карнизный свес, через который воздух отходит сверху.
При использовании пенополистирола с рифленой поверхностью требуется защитить конструктивный слой стены ветроизоляционной пленкой, позволяющей сохранить теплый воздух. Пленку крепят к обшивке стен, а пенополистирол – к стойкам с помощью дюбелей с большой пластиковой головкой.
Принцип слоистой кладки применяется при создании многослойных теплоэффективных блоков: «Термоблок» или «Теплостен». Они состоят из нескольких слоев – основы из керамзито– или газобетона плотностью не менее 1000 кг/м3, утепляющей прослойки из пенополистирол а и защитно-декоративного лицевого слоя из бетона плотностью не менее 2400 кг/м3 (рис. 37).
Пенополистироловая прослойка по сравнению с бетонной основой имеет чуть меньшую высоту, поэтому при кладке стены над ней получаются сплошные воздушные каналы. Это обеспечивает стенам возможность «дышать», поскольку материалы основы обладают неплохой паропроницаемостью. Благодаря такой конструкции, отпадает необходимость дополнительно утеплять и облицовывать стены фасадными материалами.
Стены из многослойных блоков легче кирпичных в 2 – 3 раза. Основными их недостатками можно назвать невысокую несущую способность и чувствительность к общим деформациям. Таким образом, при использовании тяжелых перекрытий необходим дополнительный каркас из металла или железобетона.

Рис. 37. Многослойные теплоэффективные блоки: а) устройство блока; 1 – керамзитобетон; 2 – пенополистирол; 3 – защитно-декоративный слой; 4 – связующая арматура; б) блок рядовой; в) блок рядовой с устройством воздухообмена; г) блок угловой наружный; д) блок с четвертью для проемов; е) блок угловой внутренний; ж) блок проемов двухсторонний
«Мокрый фасад», или теплоизоляция со штукатурным слоем
«Мокрый фасад» аналогично слоистой кладке также включает в себя три слоя (рис. 38).
Первый теплоизоляционный слой – минераловатные плиты или пенополистирол. Второй слой – армированный (базовый) представляет собой штукатурно-клеевой состав, который усилен щелочестойкой стекловолоконной сеткой. Такой метод утепления называют «легким».
«Тяжелый» метод схож с «легким», но тогда приобретают стальную армирующую сетку. Благодаря приличному весу и прочности она берет на себя и несущую функцию (в «легком» варианте эта роль лежит на утеплителе). «Тяжелый» вид утепления сильно нагружает стену, он более дорогостоящий и трудоемкий.

Рис. 38. Система внешней теплоизоляции «мокрый фасад»: 1 – клеящий раствор; 2 – теплоизоляционная плита; 3 – армированный раствор; 4 – сетка из стекловолокна; 5 – грунтовка; 6 – минеральная штукатурка; 7 – фасадная краска; 8 – цокольная планка; 9 – соединительный элемент цокольной планки; 10 – крепления цокольной планки; 11 – тарельчатый дюбель
Третий слой утеплителя – защитно-декоративный. Его выполняют фактурной штукатуркой (как правило, акриловой, минеральной, силоксановой), поверх которой наносят специальные краски.
Фасады бывают с так называемыми тонким (толщиной 7 – 9 мм) и толстым (толщиной 30 – 40 мм) штукатурными слоями. Чаще всего применяют тонкослойный штукатурный фасад.
Выбор теплоизоляционного материала
Главное преимущество такого наружного утепления (особенно «легкого» вида) в том, что оно дешевле слоистой кладки. Урезаются и затраты на фундамент, поскольку нагрузка на него незначительна. Помимо этого, данная система продлевает срок эксплуатации ограждающей конструкции: она будет защищена от атмосферных осадков, промерзания, колебаний температуры, ветра. Водяной пар при таком типе утепления не конденсируется в несущей стене, конечно, при условии грамотного подбора толщины теплоизоляционного слоя при выверенном расчете паропроницаемости всех слоев системы.
Правила установки «мокрого фасада следующие:
• плотные паронепроницаемые материалы располагают с теплой стороны конструкции, пористые паропроницаемые, наоборот, с холодной;
• с холодной стороны утеплителя или на наружной поверхности стены нельзя устанавливать материалы, которые практически не пропускают водяные пары. К таким материалам относятся пароизоляционные пленки и тяжелые цементные штукатурки.
К примеру, при применении хорошо пропускающей пар волокнистой теплоизоляции нельзя допускать, чтобы штукатурный слой стал преградой для пара, поэтому не стоит использовать вместе с минеральной ватой акриловую штукатурку, которая обладает низкой паропроницаемостью. Не следует ее использовать и в том случае, когда стены выполнены из пено– или газобетонных блоков.
Для монтажа теплоизоляционных плит используют штукатурку, бетон, пенобетон, кирпичную кладку, газосиликат, цементно-волокнистые плиты и т. д. Основание предварительно нужно высушить, очистить от жира, пыли, остатков строительного раствора, грибков и плесени, а также сделать ровным. Для укрепления подготовленную поверхность грунтуют. Грунтовка также снижает водопоглощение и улучшает адгезию клеевого состава.
Цокольный профиль, прикрепляемый к стене при помощи дюбелей, служит опорой для нижнего ряда теплоизоляционных плит. Монтаж утеплителя начинают с него, поэтому так важно смонтировать профиль идеально ровно. Там, где профиль неплотно прилегает к стене, требуется установка подкладочных шайб, подходящих по толщине.
Этапы работы
К основанию плиты утеплителя крепят при помощи клея и дюбелей. Важно выбрать правильный клей (он должен быть полимерцементным или акрилатным), потому что как раз на него падает нагрузка веса всей утеплительной системы. Его наносят нержавеющим шпателем с зубчатой поверхностью, отступив от края плиты, сплошной полосой около 5 – 6 см шириной либо 5 – 6-ю точками 8 – 10 см в диаметре по всей поверхности утеплителя равномерно (рис. 39). Для того чтобы выровнять основание, используют специальные подкладки.
Сначала монтируют первый ряд плит, который опирается на цокольный профиль. После нанесения клея плиты сразу прижимают к поверхности фасада и ударами длинной терки выравнивают. Излишки удаляют.

Рис. 39. Схема нанесения клеевого состава на утеплитель
Наклеивают плиты утеплителя вплотную друг к другу, не допуская образования щелей и делая перевязку стыков (см. кирпичную кладку). Все неровности обрабатывают наждаком. Если все же в стыках между плитами образовались щели, их следует заполнить подходящим отрезком плиты.
Чтобы получить на наружных углах ровные грани, нужно монтировать утеплитель с перехлестом, который больше толщины плиты на 2 – 3 см. Излишки плит после высыхания клея необходимо срезать ножом, а затем зашлифовать поверхность среза.
Спустя 48 ч после высыхания клея можно приступать к креплению плит к основанию при помощи специальных дюбелей. Этот дополнительный крепеж необходим для того, чтобы утеплитель лучше противостоял ветру.
Утеплительная система «мокрый фасад» получила распространение в 60-х гг. XX в. и остается популярной до сих пор. Срок ее службы составляет 25-40 лет. Плюсом является и то, что ее можно ремонтировать, а также при необходимости обновлять защитно-декоративный слой.
Если основа новая или находится в хорошем состоянии, можно не использовать дюбели, в других случаях дополнительное крепление необходимо. Также они нужны, если утепляемая стена выше 8 м. В любом случае лучше исходить из того, что дюбели – дешевый материал, а их применение значительно улучшает прочность теплоизоляционной системы.

