
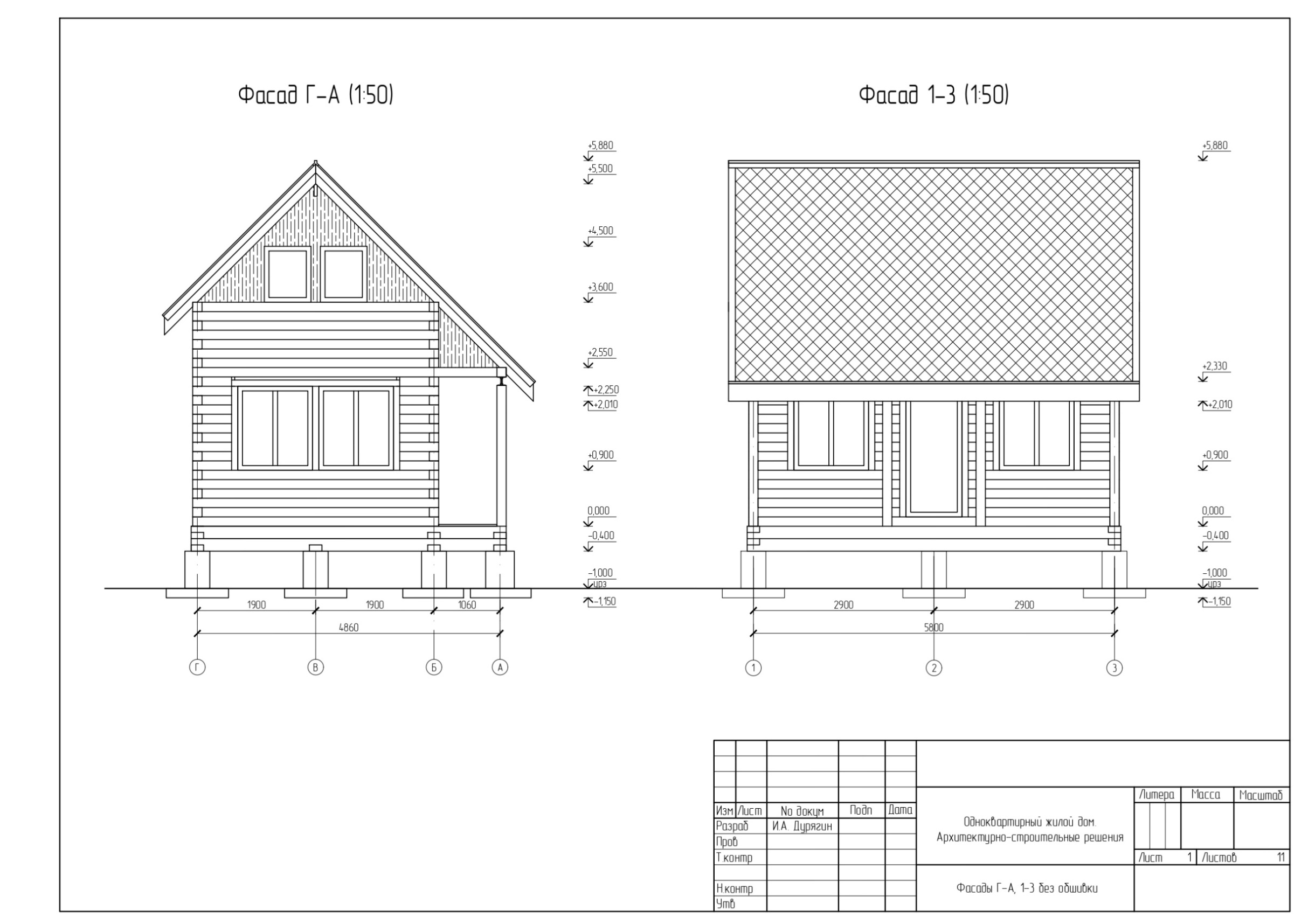
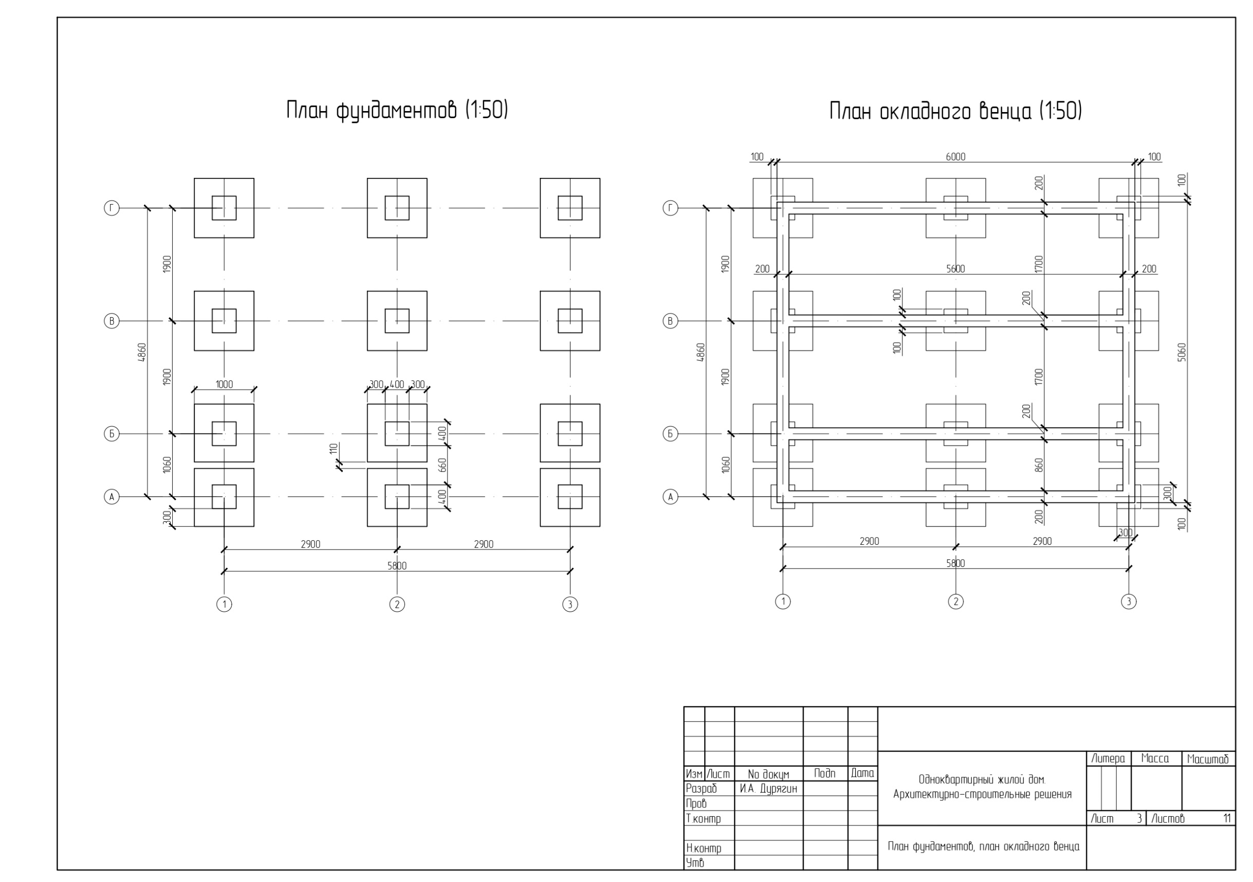
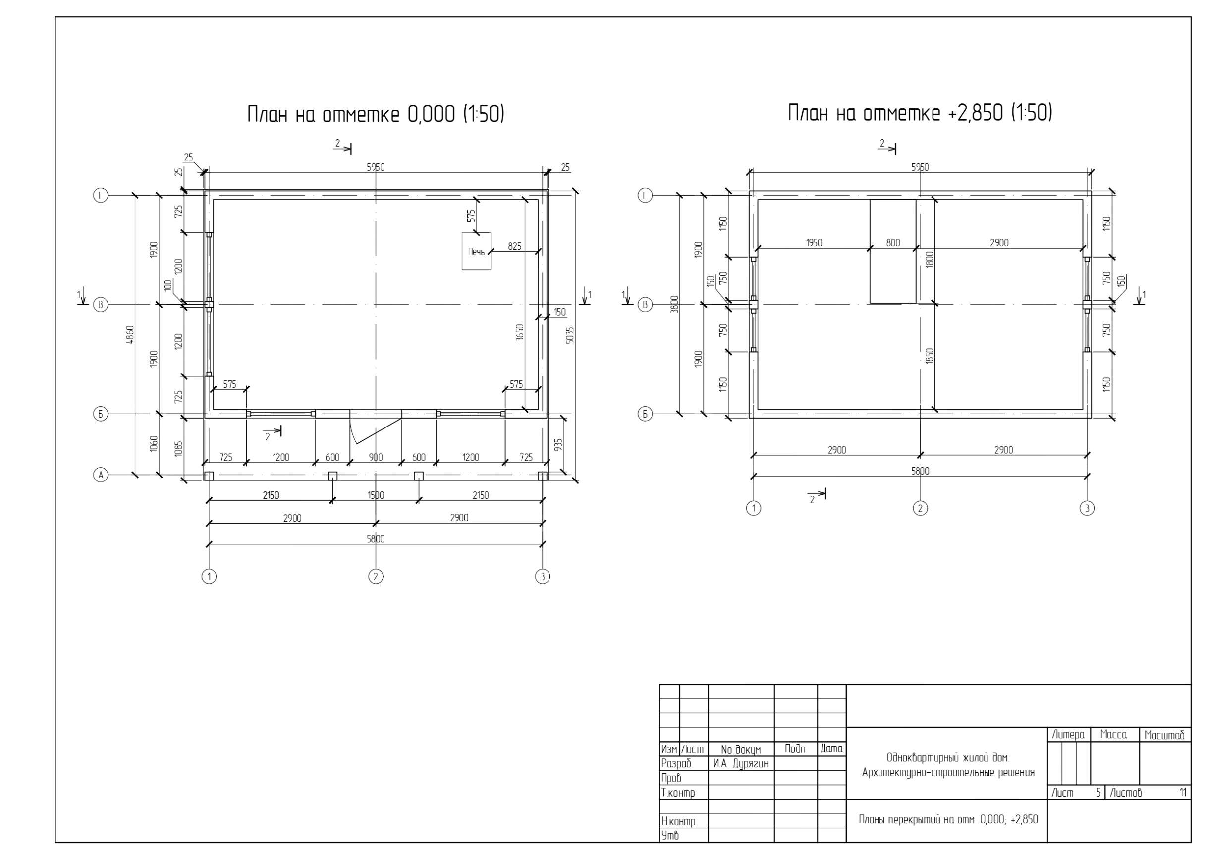
Пособие по строительству дома
Тип соединения брусьев в венце – «шип-паз». Такое соединение используется для уменьшения притока холодного воздуха через углы дома. Внутрь соединения прокладывается утеплитель – джутовое полотно.
Брусья соседних венцов соединяются друг с другом с помощью деревянных нагелей. Верх нагеля так же не должен доходить до верха отверстия на 25 – 30 мм. Между брусьями прокладывается утеплитель – джутовое полотно. Полотно крепится к брусьям при помощи строительного степлера. В утеплителе заранее прорезаются «окошечки» в тех местах, где будут сверлиться отверстия под нагели. Это делается потому, что низкооборотной дрелью нельзя сделать отверстие в джутовом полотне.
В стене нагели располагаются в шахматном порядке. Очень удобно отмечать положение нагеля в стене вертикальными линиями на внешней стороне стены.
Если монтируемый брус имеет деформацию типа «прогиб», то в венце он укладывается «горбом» вверх.
После монтажа очередного венца, необходимо его осадить. Для этого по уложенным брусьям наносятся удары массивной деревянной кувалдой.
Контролировать вертикальность стены лучше всего с помощью уровня в углах стены.
Контролировать правильность положения брусьев простенков можно с помощью шнура. Шнур натягивается по верхней поверхности стены по центру и закрепляется в крайних её точках. Таким образом, можно контролировать как отклонение положения брусьев простенков по высоте, так и смещение центров брусьев от шнура внутрь или наружу.
Венец №10 или №11 необходимо устроить без простенков. Этот венец является обвязочным для предыдущих 4-х/5-ти венцов с простенками.
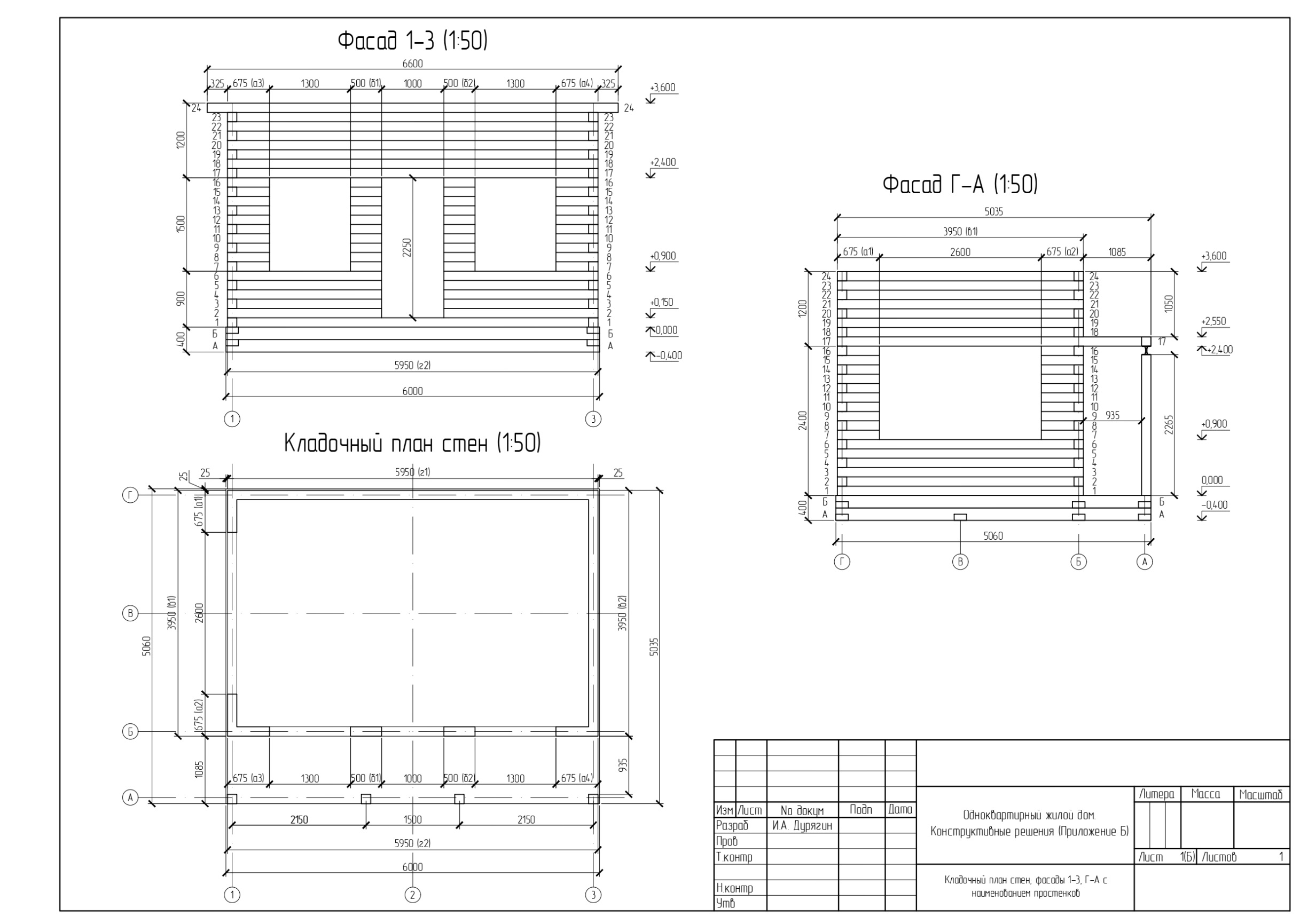
Брусья венца №17 по осям 1 и 3 выступают за плоскость стены по оси Б на 1085 мм для укладки на них прогона веранды.
Брусья венца №24 по осям Б и Г являются составными по длине. В месте стыка брусьев используется соединение «шип-паз». Внутри соединения прокладывается джутовое полотно. Эти брусья выступают за плоскость стен по осям 1 и 3 на 325 мм для опирания на них крайних стропильных ног.
Леса для возведения стен лучше всего устраивать изнутри дома.
По окончании возведения стен производится монтаж стоек и прогона веранды. Прогон веранды выступает за плоскость стен по осям 1 и 3 на 325 мм для опирания на него крайних стропильных ног. Прогон веранды состоит из двух элементов, скрепляемых шурупами 6×120 мм с головкой «под ключ». Элементы соединяются над стойкой веранды в осях 1 – 2. Используется соединение «в полдерева».
Прогон веранды собирается на земле, а затем поднимается и укладывается на брусья венца №17. Под прогон веранды подводятся стойки веранды.
К прогону веранды стойки крепятся с помощью компенсаторов усадки сруба (винтовых домкратов), а к окладному венцу – с помощью арматурных стержней гладкого профиля. Стержни окрашиваются эмалью в 2 – 3 слоя для предотвращения коррозии металла стержня.
Сначала монтируются крайние стойки, затем – средние. Порядок монтажа стойки следующий:
– установка опорной площадки винтового домкрата на прогон веранды;
– сверление отверстия в стойке под болт винтового домкрата;
– установка опорной площадки винтового домкрата на стойку;
– помещение болта винтового домкрата с накрученной гайкой в отверстие стойки;
– сверление отверстия в окладном венце под стержень арматуры;
– сверление отверстия в стойке под стержень арматуры;
– установка стержня арматуры в отверстие в окладном венце;
– «насаживание» стойки на установленный в окладном венце стержень;
– вкручивание болта до упора в опорную площадку винтового домкрата прогона веранды.
По мере усадки сруба необходимо подтягивать гайку на болте винтового домкрата, чтобы опускался прогон веранды.
4.4 Возведение крыши
4.4.1 Стропильная система
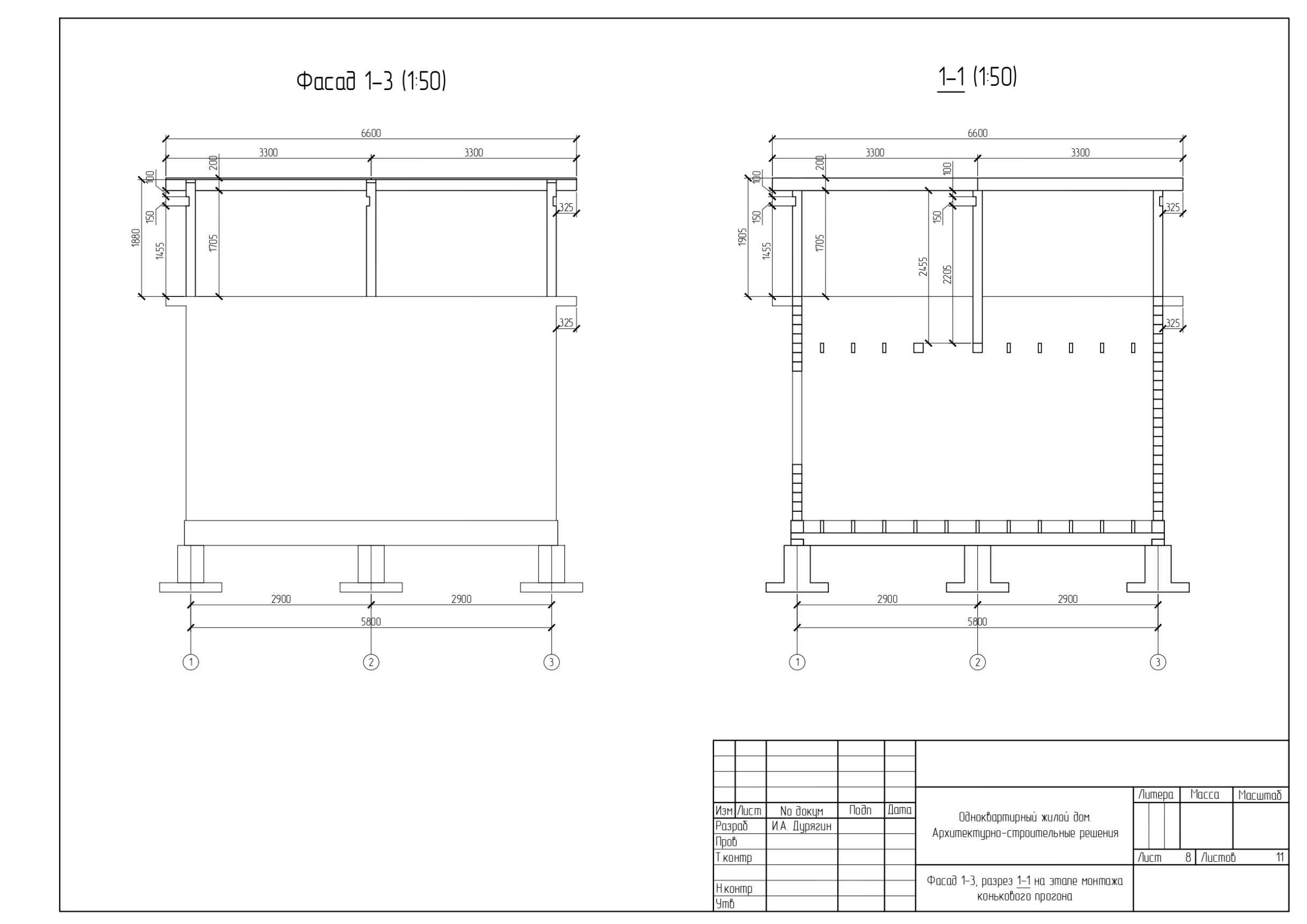
Возведение стропильной системы начинается с монтажа опорных стоек конькового прогона.
В стене на месте установки крайней опорной стойки конькового прогона вырубается паз под шип на конце стойки. Установленная стойка временно закрепляется на стене.
Средняя опорная стойка конькового прогона крепится к брусу перекрытия пола мансардного этажа при помощи арматурного стержня гладкого профиля. Стержень предварительно окрашивается эмалью в 2 – 3 слоя для предотвращения коррозии металла стержня.
В запилы на стойках заводятся элементы конькового прогона и стыкуются на средней опорной стойке. Элементы конькового прогона крепятся к средней стойке шурупами 6×120 мм с головкой «под ключ» (по 2 шурупа на 1 элемент). Стойки выравниваются в двух плоскостях и закрепляются на стенах/на брусе перекрытия с помощью стальных уголков и шурупов 6×70 мм с головкой «под ключ». Элементы конькового прогона крепятся к крайним стойкам шурупами 6×120 мм с головкой «под ключ» (по 2 шурупа на 1 стойку).
Далее следует монтаж стропил.
Стропильные ноги выставляются попарно и крепятся друг к другу на болтах при помощи накладок над коньковым прогоном.
После того, как выставлены все пары стропильных ног, производится выверка их положения. В местах опирания на стену стропила крепятся с помощью стальных уголков, болтов и шурупов 6×70 мм с головкой «под ключ». Каждая стропильная нога крепится к стене при помощи двух уголков.
По окончании монтажа стропил собираются каркасы фронтонов.
Стойки каркаса фронтонов к стенам крепятся с помощью стальных уголков и шурупов 6×70 мм с головкой «под ключ»; к стропилам – на гвоздях. Перемычки каркаса фронтонов к крайней опорной стойке конькового прогона крепятся с помощью стальных уголков и шурупов 6×70 мм с головкой «под ключ» (по 1 уголку на перемычку); к стойкам каркаса фронтона – на гвоздях.
Снаружи фронтон обшивается плитой OSB-3. Оконные проёмы оставляются открытыми. Обшивка фронтона производится через оконные проёмы.
4.4.2 Обрешётка
Возводить стропильную систему можно с внутренних лесов, которые использовались во время монтажа стен. Для устройства обрешётки и последующих кровельных работ необходимо смонтировать леса вдоль скатов крыши снаружи дома.
Устройству обрешётки предшествует монтаж карнизной планки (фартука – капельника) к стропилам. Планка крепится на саморезах по металлу с плоской головкой.
Далее накатывается одна полоса гидроветрозащитной мембраны. К стропилам мембрана крепится при помощи строительного степлера. Мембрана не должна провисать в пролёте между соседними стропильными ногами. К карнизной планке мембрана крепится с помощью самоклеящейся двухсторонней акриловой ленты.
Сверху на мембрану по стропильным ногам набиваются элементы контр-обрешётки. Длина элемента находится как ширина полотна мембраны за вычетом ширины нахлёста полотен. Для крепления элементов контр-обрешётки необходимо использовать гвозди с насечками (ершёные гвозди), которые должны заходить в тело стропил минимум на 50 мм, либо саморезы той же длины в сочетании с обычными гвоздями. Использовать «чёрные» саморезы не допускается.
Далее монтируется обрешётка в пределах ширины одного полотна мембраны. Стык элементов обрешётки производится только на опорах. Опорами для элементов обрешётки являются элементы контр-обрешётки. Стык элементов обрешётки в пролёте между соседними элементами контр-обрешётки не допускается. Шаг обрешётки выставляется с помощью шаблона либо по сторонам соседних досок, обращённым к свесу ската «по низам», либо по сторонам, обращённым к вершине ската «по верхам». Использовать шаблон, который устанавливается в пространство между соседними досками обрешётки не допускается.
Необходимо так же обратить внимание на то, что шаг между 1-ой и 2-ой досками обрешётки отличается от шага между остальными досками.
Между досками обрешётки соседних скатов, которые сходятся в вершине крыши, необходимо оставить зазор для выхода воздуха, вентилирующего подкровельное пространство (см. рисунок 4.7).

Рисунок 4.7 – Зазор для выхода воздуха, вентилирующего подкровельное пространство

Рисунок 4.8 – Соединение полотен мембраны на вершине крыши
4.4.3 Кровля
В качестве кровельного материала рекомендуется использовать металлочерепицу со следующими характеристиками:
– толщина металла: 0,5 мм;
– толщина защитного полимерного покрытия: 0,25 – 0,50 мм;
– содержание цинка: 275 г/м2.
Резка листов металлочерепицы (при необходимости) производится электрическими просечными ножницами по металлу, либо специальной насадкой на дрель для резки металлочерепицы типа «Grand Line – Стальной бобёр», либо электролобзиком с лезвием по металлу.
К доскам обрешётки листы металлочерепицы крепятся кровельными саморезами с шайбой и уплотнительной прокладкой. В правильно закрученном саморезе прокладка сжата лишь слегка.
Саморезы вкручиваются в лист металлочерепицы в области, где он контактирует с обрешёткой. Эта область находится по центру между соседними гребнями волн. Саморез должен располагаться ниже ступеньки листа металлочерепицы на 10…15 мм.
Монтаж листов металлочерепицы рекомендуется производить справа-налево. В этом случае очередной лист накладывается сверху на уже смонтированный.
Монтировать листы можно так же и слева-направо. В этом случае очередной лист подсовывается под уже смонтированный. Это довольно удобно, но существует вероятность повредить защитное полимерное покрытие во время подсовывания листа.
Оптимальное количество рядов листов металлочерепицы по высоте ската при данных габаритах скатов – 2 ряда. При большем количестве рядов ошибки, которые были допущены при укладке листов каждого предыдущего ряда, будут увеличиваться при переходе к листам последующего ряда. Однако не рекомендуется использовать листы металлочерепицы длиной более 4 м. В противном случае повышается вероятность смятия листа во время выгрузки или укладки на скат.
По окончании укладки листов металлочерепицы монтируются доборные элементы кровли.
Сначала монтируется торцевая планка.
Для крепления торцевой планки на крайние стропильные ноги набиваются торцевые доски. Торцевая доска должна быть выше обрешетки на высоту профиля металлочерепицы. Минимальный нахлёст элементов торцевой планки – 100 мм.
Допускается использовать карнизные и торцевые планки с толщиной металла меньше, чем у листов металлочерепицы, но не менее 0,40 мм. Особенности монтажа торцевой планки показаны на рисунке 4.9.

Рисунок 4.9 – Монтаж торцевой планки
Перед монтажом планки конька в области перекрытия коньком листов металлочерепицы наклеивается уплотнитель конька. Коньковый уплотнитель должен иметь аэрационные отверстия для выхода воздуха, вентилирующего подкровельное пространство. Коньковая планка крепится к обрешётке. Саморезы вкручиваются в коньковую планку в местах расположения гребней волн листов металлочерепицы. Для крепления коньковой планки используются саморезы большей длины, чем для крепления листов металлочерепицы.
Толщину металла коньковой планки следует брать больше либо равной толщине металла листов металлочерепицы, но не менее 0,5 мм.
Листы металлочерепицы и все доборные элементы монтируются с лестницы для крыши. Можно устраивать отдельную лестницу для каждого ската; либо делать одну лестницу с которой обеспечивается доступ сразу на 2 ската; либо одну лестницу с доступом на 1 скат, но переносить её на другой скат по окончании работ на первом скате.
Утепление и обшивку стен, устройство полов, утепление крыши, внутреннюю отделку, прокладку инженерных коммуникаций и установку печи дровяного отопления необходимо производить по истечении года с момента окончания кровельных работ.
























