
Бани, сауны

К.В.Балашов
Бани, сауны
Введение
Самостоятельно построить баню не так-то просто. Топить ее тоже следует определенным образом. Однако та польза, которую принесет баня вам и вашей семье, с лихвой окупит все потраченные на ее строительство усилия.
В последние годы семейные бани стали строить не только в селе, но и в городах. Как правило, такие бани устроены достаточно стандартно, однако многие люди, в первую очередь молодые, не имеют представления о принципах их строительства. Обычно баню строят из тех же самых материалов и теми же самыми способами, что и дачный дом, а также всевозможные приусадебные постройки. Но в строительстве бани есть свои особенности и определенные правила, соблюдая которые можно возвести наиболее дешевую и удобную для всех баню с учетом всех индивидуальных особенностей. В этом пособии предпринята попытка систематизировать и полно осветить все вопросы, касающиеся строительства и последующего использования бани.
1. Как правильно выбрать место для установки бани на участке
Перед тем как приступить к строительству бани, необходимо тщательно продумать ее месторасположение и стройматериалы, а также точно рассчитать все ее размеры, определить внешний вид, внутреннее устройство, используемое в ней оборудование. Наиболее оптимальным местом для бани является берег какого-либо водоема, например озера, реки или пруда, но не у самой кромки воды, а в 15–30 м от нее, где уже сухо и нет опасности затопления. Также следует отметить, что использованная вода бани ни в коем случае не должна попадать в водоем, так как она будет его сильно загрязнять. Лучше всего, если баня будет находиться как можно дальше от дороги, в тихом месте, отгороженном деревьями, забором или постройками. Для строительства также может подойти и достаточно крутой склон. В этом случае баня может быть выполнена в форме землянки или полуземлянки, при этом можно для нее сделать террасу, установленную на столбах.
Следует отметить, что вход в баню, сделанный в виде террасы или веранды, покрытой вьющимися растениями или окруженной клумбами цветов, окажется оригинальным дополнением и украсит как саму баню, так и весь участок, особенно летом. Сооружение цветников, декоративных кустарников или небольшого водоема перед баней позволит вам оборудовать участок отдыха на своей усадьбе или даче. Исходя из всех этих соображений, вход в баню лучше всего делать с юга. Это облегчит эксплуатацию бани в зимнее время, так как с южной стороны меньше сугробов и тают они быстрее. Так как баню, как правило, топят вечером, окна лучше всего располагать с восточной или с западной стороны – лучи солнца будут проникать через окна.
На заметку!
Чтобы веник для бани действительно принес вам пользу, необходимо правильно его заготовить. Ветки для него лучше всего срезать в чаще леса или на лужайках. Ни в коем случае для веника не следует использовать ветки с деревьев, растущих по обочинам дорог.
На место установки бани оказывает влияние и ее конструкция. Если баня дымная, то есть отапливается по-черному, то от ее стен до границ участка и других строений должно быть не менее 12 м. Такую конструкцию следует устанавливать с той стороны дома и других строений, куда дует ветер. В густонаселенных районах строить такую баню запрещено, да и в сельской местности ее возводить не следует, так как она является пожароопасной. В нашей стране такую баню можно теперь встретить достаточно редко. Недымная же баня отапливается по-белому, но ее все равно желательно строить отдельно от других строений. В идеале от стен такой бани до других построек должно быть не менее 5 м. Но все же такую баню можно совместить с дачным домиком. Это позволит несколько сэкономить строительные материалы, а также землю, которую будет занимать конструкция. К тому же пользоваться такой баней гораздо проще и удобнее. Такое совмещение распространено в республиках Прибалтики. В Финляндии подобные бани строят не только просто совмещая их с домом, но и в подвалах, и даже на чердаках.
Такого рода бани одновременно являются и соляриями. Они становятся украшением домов, придают им выразительность.
Недымную баню можно совместить с летней кухней, теплицей или мастерской. Это позволит значительно облегчить подводку электричества, воды, канализации. Следует отметить, что сухая, чистая и теплая баня может служить спальней в случае приезда гостей. Во время строительства и ремонта баня может стать временным жилищем. В ней также допустимо выращивать раннюю рассаду, оборудовать фотомастерскую, сушить ягоды, грибы и травы. Именно поэтому многие садоводы и дачники, как и сельские жители, сначала возводят баню, а только после этого приступают к строительству дома.



Перед началом строительства нужно тщательно продумать устройство и расположение бани. Следует отметить, что нормы на установку недымных бань отсутствуют. Исходя из размеров участка, отводимого под застройку, можно привести некоторые ориентировочные рекомендации по расположению банной конструкции (табл. 1).
План внутреннего устройства бани лучше всего согласовать со специалистом в этой области – с архитектором или строителем. Определяясь с размерами банных помещений, необходимо принимать во внимание рельеф, форму, а также размеры участка, архитектуру и расположение дома и остальных строений как на своем, так и на соседних участках, интересы и возможности семьи и т. д.
Решая вопрос о размещении, конструкции и размерах бани, учтите возможность ее блокирования или совмещения с другими постройками, варианты которого бывают совершенно различными. Например, можно с помощью глухой боковой стены отделить друг от друга бани на соседних участках, но при этом сделать для них общую канализацию. Если блокировать баню от гаража, то лучше всего сделать между постройками проем, который станет тамбуром для бани и хранилищем топлива.
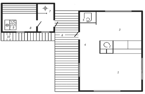
На рисунке 1 изображен план участка с отдельно установленной баней. Площадь приведенного участка составляет 1200 м2.
На данном плане баня расположена около северо-западной границы, примерно в 10–12 м от дома, причем вход в баню находится с юго-западной стороны, то есть за ним удобно наблюдать из окна дома, когда топится печь. К тому же вход, расположенный таким образом, будет защищен деревьями и от ветра, и от чужих глаз. Окна моечной и предбанника находятся на северо-западной стороне, в результате чего банное помещение будет хорошо освещаться заходящим солнцем, а во время купания можно присматривать за домом и детьми, находящимися на игровой площадке.
НА ЗАМЕТКУ
Пропаривание в бане с применением березового веника поможет снять боли и ломоту в суставах и очень полезно при заболеваниях органов дыхания.
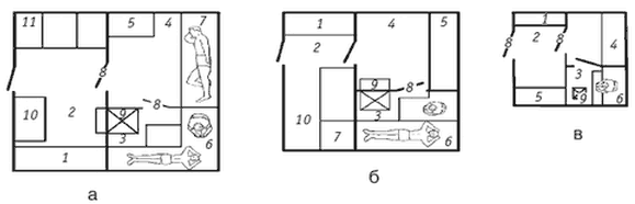
Неподалеку от бани расположен бассейн, в котором в теплое время года можно купать детей. Водой после купания можно поливать огород и деревья, которые также находятся рядом. Со стороны жилого дома крыша банного строения выступает на 1,5 м и таким образом образует навес над столом-верстаком. Пространство, находящееся под верстаком, можно использовать для хранения дров. Печь в бане отапливается из предбанника. Туалет находится сразу за баней. Такую баню можно топить круглый год. В связи с этим ее отдельное размещение и большие размеры весьма оправданы. На рисунке 2 представлен план размещения бани, совмещенной с кухней и теплицей, на участке площадью 500 м2.
Летняя кухня одновременно выполняет функции предбанника, а кухонная плита еще является печью-каменкой. Помимо этого, водогрейный бак печи соединен с трубами, проходящими через теплицу (их нет на рисунке). В связи с этим избыток тепла, который образуется во время приготовления пищи или при топке бани, может использоваться для согревания воздуха в тепличном помещении ранней весной или осенью.


Чтобы баня и кухня не образовывали слишком большой тени, их крыша выполнена без чердака с одним скатом. Дождевая вода должна собираться в бак, который следует поставить через дорожку напротив бани. Эту воду можно использовать для стирки, мытья, полива и т. д. Кухня в этом случае будет освещаться через окна, которые выходят на юго и северо-запад. В моечную будет проникать свет через окно в двери, а в парильню – через окно, выходящее в кухню. От домика, в котором оборудована веранда дома до бани и летней кухни должно быть с навесом, не менее 5 м.
На рисунке 3 представлен план установки бани неподалеку от садового или дачного домика, в котором оборудована веранда с навесом.
Такое размещение будет очень удобным в том случае, если дом расположен с северо-западной или с северной стороны. Подобное решение позволит сэкономить территорию, так как не придется делать дорожку к бане, а также можно обойтись и без предбанника, потому что раздеться можно и в основном доме. Перед домом и баней образуется площадка, защищенная от ветра и открытая солнцу, ее можно использовать для детских или спортивных игр, отдыха или оборудовать на ней цветочную клумбу.




Веранду дома и скамейку возле банной стены, находящуюся под навесом, можно использовать в качестве солярия, а если поднять ее немного выше, получится верстак или стол. Ниже представлены варианты совмещения бани и дачного дома.
Баня, показанная на рисунке 4, является фактическим продолжением кухни – эти два помещения имеют общую печь и канализационную систему. Подобную баню можно использовать в любой момент. Печка в этом случае по своему устройству будет достаточно сложной, чтобы иметь возможность отдельного использования каменки и секции для обогрева дома.
Вариант бани, приведенный на рисунке 5, представляет собой продолжение санузла дома.
На заметку!
Если у вас чувствительная кожа, хвойный веник вам вряд ли подойдет. Чтобы хвоя стала помягче, веник перед непосредственным использованием заливают на 20 минут крутым кипятком. Однако для его использования нужно подготовить и тело, посидев предварительно в парилке 5–7 минут.
Фактически в эту банную конструкцию входят все элементы, создающие комфорт: отдельная печь-каменка, отдельная моечная, предбанник с функциями раздевалки и даже туалет. Однако у этой системы имеется один очень существенный недостаток – сложная система канализации.


Принято считать, что совмещение бани с домом ведет к образованию сырости, возникновению неприятных запахов в жилом помещении и уменьшению срока службы строения. Это не лишено оснований. Действительно, оборудовать баню в доме нежелательно, но все равно возможно. Допустим, в благоустроенных квартирах имеются ванная, душевая и туалет, при этом они нисколько не ухудшают жилищных условий, а только создают дополнительный комфорт. Если соблюсти все санитарно-технические нормы и требования при постройке помещений с повышенной влажностью воздуха, обеспечить надежную гидроизоляцию, канализацию и вентиляцию, то устройство бани в самом доме только добавит ему комфорта. Но в доме все равно лучше сооружать баню с сухим паром, например суховоздушную баню-сауну. При достаточно высокой температуре все части бани быстро становятся сухими, поэтому не портятся и не загнивают со временем. Если моечная и место для мытья в парильне устроены правильно и для них верно выбрано место, то вся использованная вода, не задерживаясь в доме, будет стекать в канализацию, что тоже способствует сохранению целостности здания. А на пути этой воды можно поставить весьма простую конструкцию – гидрозатвор, который будет препятствовать проникновению неприятных запахов из канализации.
Помимо этого, печь-каменка с раскаленными камнями хорошо очищает и обеззараживает воздух, а также улучшает вентиляцию, особенно если поддувало находится на уровне пола или немного ниже. Как правило, при топке печи в бане образуется приятный запах древесной смолы с небольшой примесью дыма. Именно поэтому парильня с сухим паром после остывания и вентилирования может использоваться в качестве спальни. По этой же причине сауну, то есть баню с сухим паром, можно оборудовать даже в квартире – в ванной, большой кухне, кладовке и даже на лоджии. Главное – обеспечить изоляцию пола от воды, а также пожарную безопасность.
НА ЗАМЕТКУ
Когда вы будете пользоваться баней, особенно если она находится в доме или около него, не лейте много воды на камни и не допускайте их охлаждения. Они должны оставаться сухими и горячими, чтобы после купания обеспечить просушку бани.
2. Внутренняя конструкция и определение размеров бани
Устройство бани определяется размерами ее основных помещений, которыми являются парильня, моечная и раздевалка. Наиболее выгодным считается следующее соотношение их площадей: 1: 1,5: 2. Однако каждый строитель может выбрать собственное соотношение.
В бане можно оборудовать отдельные помещения: душевую, туалет и комнату отдыха. Обычно помещения для хранения топлива и инструмента совмещаются с раздевалкой, одновременно являющейся предбанником. Душ обычно устанавливается в моечной. В банях небольших размеров часто размещают в одном помещении и парильню, и моечную. В этом случае в самой бане можно выделить всего два помещения – собственно баню и предбанник. Но в самой бане может и не быть предбанника. Его функцию может выполнять крыльцо с навесом. Такая конструкция является самой простой, но в то же время неудобной, если она, конечно, не находится поблизости от дома или не является его частью. Если же баня расположена отдельно от дома, то в ней в обязательном порядке должен быть предбанник.
Если дом начинается с прихожей, то баня должна начинаться с предбанника. Это помещение служит для:
– защиты основных банных помещений от стужи и ветра;
– обеспечения адаптации при переходе от холода к теплу и наоборот;
– хранения топлива, воды, различных инструментов;
– выполнения различных хозяйственных нужд.
Если баня предназначена для использования только в весенне-летний период, то вместо предбанника можно выстроить террасу с деревянной лежанкой, на которой можно принимать солнечные ванны, или крыльцо с широким навесом и скамейкой.
В небольших по размеру банях вместо предбанника можно соорудить широкий тамбур с настенными вешалками. Освещение его должно обеспечиваться через стекло, размещенное в верхней части наружной двери. Если же планируется строительство благоустроенной бани, то необходимо сделать и предбанник, и террасу, которая в этом случае будет использоваться для промежуточного охлаждения. Под потолком террасы можно подвесить лампы инфракрасного и ультрафиолетового излучения.
НА ЗАМЕТКУ
Если есть возможность, то неподалеку от бани можно устроить продолжение предбанника, например бассейн, водоем или хотя бы бак с водой, чтобы чередовать банные процедуры с обливанием холодной водой.
НА ЗАМЕТКУ
Пропаривание с веником из полыни поможет вам при лечении заболеваний органов дыхания, простуды, болезней сердца и сосудов.
В предбаннике можно сделать широкие окна с высокими подоконниками.
При этом незашторенные окна должны находиться на высоте 140 см от пола. В предбаннике должны быть вешалки, сиденья, подставка для обуви, ведра с водой, дрова (если печь топится углем, то его надо хранить в ящике с крышкой). Чтобы немного сэкономить место, подставки для обуви, инструмент можно разместить под сиденьями. Если предбанник представляет собой весьма просторное помещение, то в нем можно оборудовать камин, стол и лежанку. В этом случае предбанник приобретет функцию места отдыха после парной, а в другое время в нем можно выполнять самые разные работы.


Размеры предбанника рассчитываются исходя из числа людей: на одного человека должно приходиться не менее 1,3 м2 площади.
Ширина этого помещения должна быть не меньше 1 м. Если ширина предбанника составляет 180 см или даже больше, то в этом случае у одной стены можно установить лежанку.
Предбанник и моечную соединяет дверь. В самой моечной должны стоять баки или ведра с горячей и холодной водой, скамейка, поддон для принятия душа или для обливания водой. В моечной же можно установить стиральную машину. Размеры моечной вычисляются следующим образом: на одного человека приходится не менее 1 м2 площади.

Чтобы в моечной можно было делать массаж, вместо скамейки надо поставить деревянную лежанку размером 65 x 180 см, и тогда площадь помещения должна быть не менее 180 x 180 см. От парильни моечную отделяет только легкая перегородка.
Следующей частью бани является парильня. Это важнейшее банное помещение должно быть таким, чтобы человек в нем чувствовал себя достаточно комфортно, его тело равномерно прогревалось, а также была возможность использовать веник. Размеры парильни принимаются в зависимости от того, сколько человек одновременно будут в ней мыться и в каком положении они будут располагаться на полке – сидя, полулежа или лежа, а также тип печи. Наименьшая ширина полка для сидения – 40 см, если сидеть на нем с поднятыми ногами, то – 90 см. Если на полке лежать с согнутыми ногами, то его длина должна равняться 150 см, если лежать с вытянутыми ногами, то – 180 см. Форма полка может быть самой различной – плоской, с упором для головы, в виде кресла-шезлонга (рис. 6).


Чтобы парильня хорошо прогревалась, но при этом сохранялась требуемая влажность воздуха, следует установить печь-каменку. Еще используют нагреватели-калориферы, которые работают от электрической сети, иногда для этой цели применяют трубы, по которым пропускают горячий газ, образующийся при сгорании топлива, или перегретый пар. Если использовать калориферы, то они позволяют быстро поднять в парильне температуру до необходимой величины, при этом температуру можно регулировать. Однако они не обеспечивают накопления тепла и с течением времени сильно затрудняют регулирование влажности воздуха. Если отключить источник энергии, то калориферы очень быстро остынут. Иногда влажность воздуха может быть отрегулирована с помощью выпуска в парильню определенного количества пара. Но при этом создается неприятная для моющихся очень влажная атмосфера. Для частных бань такие способы обогрева являются, во-первых, труднодоступными, а во-вторых, не очень пригодными. Лучше всего для парильни использовать печь-каменку, при этом допускается применение как электрической, так и работающей на твердом или жидком топливе либо газе. Конструкция и размер печи-каменки определяются исходя из используемого топлива, размера помещения и требуемой мощности. В малых парильнях, площадь которых не превышает 2 м2, малогабаритные печи можно разместить под полоком или в специально сделанной для этого нише в стене.
Минимальные размеры бани и помещений, предназначенных для мытья, указаны в таблице 2.
На рисунке 7 приведены планы бань, рассчитанных на 1–4 человек. Постройки включают в себя три помещения – парильню, моечную и предбанник.
НА ЗАМЕТКУ
Следует помнить, что печь должна быть удалена от сгораемых элементов конструкции и ее должно окружать деревянное ограждение, чтобы моющийся человек случайно не обжегся об нее.
Первый вариант: в такой бане мыться могут сразу два человека, однако париться им придется по очереди. Печь-каменка в бане должна занимать не более 0,15 м2 полезной площади. Чтобы было относительно удобно пользоваться такой баней, желательно вместо скамеек взять легкие и низкие табуреты.
Второй вариант: в такой бане свободно мыться и париться может только один человек. Занимать одно помещение сразу втроем можно лишь в положении сидя. В парной же двое могут разместиться на верхнем полоке, причем только с согнутыми ногами. В такой бане можно установить печь-каменку из кирпича и отапливать ее из моечной.
Третий вариант: в такой бане может париться лежа только один человек. Это позволяет сочетать банные процедуры с массажем в моечной. В предбаннике, ширина которого по плану составляет 180 см, можно установить стол, шкафы для одежды, посуды и топить печь отсюда, не входя в моечную. На рисунке 8 приведены конструкции бань, где парильня совмещена с моечной.
Конец ознакомительного фрагмента.
Текст предоставлен ООО «ЛитРес».
Прочитайте эту книгу целиком, купив полную легальную версию на ЛитРес.
Безопасно оплатить книгу можно банковской картой Visa, MasterCard, Maestro, со счета мобильного телефона, с платежного терминала, в салоне МТС или Связной, через PayPal, WebMoney, Яндекс.Деньги, QIWI Кошелек, бонусными картами или другим удобным Вам способом.
Приобретайте полный текст книги у нашего партнера:

