
Эпоха Просвещения. Разочарование. Поиски. Интерьеры Нового времени. Часть 2

Римма Байбурова
Эпоха Просвещения. Разочарование. Поиски. Интерьеры Нового времени. Часть 2
Введение
Последовательное освоение земного отрезка жизни привело в XVII столетии к возникновению фундаментальной науки. Открывается целый ряд естественных законов, по которым существует окружающий мир. Это подтолкнуло мыслителей к идее, что по законам, естественным, безразличным к национальностям особенностям и религиозным конфессиям, можно построить на Земле новый «Золотой век». Эта идея легла в основу Просвещения. Во 2-й пол. XVIII в. ее выразителем стал стиль классицизм, подчинивший в интерьере законам и построение, и убранство. Образцом послужили пропорциональные гармоничные сооружения античности. Интерьеры классицизма прошли три стадии развития. На раннем этапе они «распрямились», начался поиск совершенных построений. В зрелом периоде пропорции найдены, оформление все более выявляет архитектурное начало и т. д. Последняя стадия классицизма – величественный стиль ампир, появившийся благодаря амбициям французского лидера Наполеона Бонапарта, возжелавшего создать великую империю. Интерьеры ампира сполна запечатлели итоговую стадию эволюции классицизма – в ампире ярко предстало архитектурное начало, а масштабы, военные мотивы и египетские реминисценции в декорации и наполнении интерьеров отразили устремления императора Наполеона.
Разочарования в идеях Просвещении, реакция на наполеоновские захваты заставили вспомнить современников о национальных корнях, о религии. Отныне интересы сосредоточены на семье, существенную роль играет желание жить удобно и окружать себя приятными вещами. Наряду с этим, идеи для оформления интерьера черпаются в спасительном прошлом, т. е. появляются интерьеры историзма. Спектр исторических «открытий» ширится. Но растут и возможности, предоставляемые совершенствующимся машинным производством. Это все отразил интерьер, который к последнему десятилетию XIX в. оказался наполнен предметами мебели, окутан коврами, занавесями, скатертями, забран безделушками, фотографиями и проч.
Между тем на протяжении XIX в. наука поставляла новые и новые открытия, которые уже не вписывались в механистическую модель мира. Как всегда, надвигающиеся перемены первыми почувствовали в разных странах художественные натуры. К тому же их всерьез заботил бесперспективный путь развития интерьера. И они предложили соединить в интерьере только полезное и красивое. Соответствующие интерьеры появились в разных странах, в каждой со своим названием: Ар Нуво, сецессион, югендстиль, модерн, флореале и др.
Интерьеры классицизма
2-я пол. XVIII в.
Великие открытия XVII в. изменили взгляд современников на мир. Оказывалось, что все в мире подчинено законам, которые неизменно открывались в разных областях. В результате возникла точка зрения, что Бог сотворил мир как гигантский механизм, подобный часовому. Восторжествовала так называемая механистическая модель мира, механицизм.
Одновременно пристальный интерес, возникший в XVII столетии к человеку и проблемам морали, привел, в конце концов, к единодушному заключению: 1) каждый человек от природы обладает естественной разумностью, которую можно совершенствовать, и 2) все люди от природы свободны удовлетворять свои интересы, значит, все люди равны. По мнению философов, равенство и свобода людей – это также естественные универсальные законы, существующие с момента творения мира. Опора на них вплотную подвела мыслителей к вопросам устройства государства как общества свободных граждан, которые добровольно ограничили свои естественные права.
Опора на универсальные законы, лежащие в основе мира, проливала свет (по словам Декарта) на изначально верное естественное устройство бытия. Со временем возник целый комплекс идей по устроению мира, нравов, морали. В ряде стран он получил соответствующую высказываниям Декарта корневую основу: Просвещение (рус. корень свещ, свет), Siècle De Lumière (франц. lumière – свет), Enlightenment (англ. light – свет). Адепты новых идей обрели статус просветителей. Они были единодушны в критической оценке существующего мира, в необходимости основываться на естественных законах, но их взгляды на правильное устройство общества порою даже противоречили друг другу.
Творческая активность знаменитых просветителей XVIII в. Вольтера, Руссо, Дидро, Монтескье, Гельвеция и др. пришлась на 2-ю четв. – сер. XVIII в. и определила художественные образы 2-й пол. этого века. Горячие дебаты просветителей проистекали в эпоху рококо. Они находили отражение в литературных сочинениях, научных трактатах и эссе и неизменно получали отклик в светских салонах. Новые, интригующие общество идеи шли в разрез с «легкомыслием» рококо, с его нацеленностью на удовлетворение чувственных интересов, на развлечения и комфорт.
Интерьеры рококо также этим идеям не соответствовали. С новых позиций среда обязана была быть разумно – по естественным законам – организованной, с ясными и выверенными формами. Подобные образы демонстрировал, к примеру, античный мир. В 1750-е гг. во французских интерьерах начинают появляться (в противоположность рокайльным) прямолинейные формы, которые отражали разумные схемы философов-просветителей. Современники определили это явление как goût grec (греческий вкус). В это время еще не видели особой разницы между греческой и римской древностью. Те же идеи всколыхнули в 1750-х гг. интерес к раскопкам в древнеримских Помпеях и Геркулануме, погибших при извержении вулкана Везувия в 79 г. н. э. Европейцы, уже готовые в середине XVIII в. к переменам в своей жизни, по достоинству оценили отлично сохранившиеся античные дома и виллы. В них, симметричных, гармонично организованных и к тому же прекрасно декорированных, Европа воочию увидела жилые сооружения, соответствующие представлениям об упорядоченном, устроенном по законам мире.
Всеобщее господство законов запечатлел появившийся в середине XVIII в. новый стиль классицизм (от лат. classicus – образцовый, достойный для изучения в классах). Этот стиль провозглашал истинным только все естественное, созданное по естественным законам. Соответственно основой законов классицизма становится естество, т. е. Природа.
В архитектуре, а значит в интерьере, законами классицизма выступают симметрия, ритмичность и пропорциональность (гармония) целого и частей. Они воспринимаются человеком как естественные (см. кн. 1 «Одушевленный мир. Язычество. Древние интерьеры»), а потому как правильные на подсознательном уровне. Оказалось, что открытая миру древними греками ордерная система им органично соответствует. Формообразующими элементами в интерьерах классицизма становятся правильные фигуры: прямоугольник с пропорционально связанными сторонами и круг (полукруг) – совершенная, равноудаленная от центра кривая, т. е. логичные прямоугольные и циркульные формы.
Естественные разумные правила классицизма действовали на всех уровнях архитектурного построения: пространства, объема, поверхностей, композиций и фрагментов композиций, отдельных форм, а также в организации всех элементов убранства интерьеров. И поскольку этим правилам подчинились как цельный образ, так и составляющие его части, каждая часть классицистического целого получала композиционную обособленность. Все формы, в том числе и отдельные части композиции, симметричны или регулярны и соразмерно упорядочены. Т. е. подчиненные общему замыслу, они связаны пропорционально, соблюдается соответствие целого и частей, а также соответствие частей друг другу. Как следствие возникает иерархия: цельный главный образ → его фрагменты, где каждый фрагмент, в свою очередь, самостоятельный композиционный центр с подфрагментами → подфрагмент как очередной центр и т. д. При подобном решении соответственно выстраиваются акценты восприятия – от главного к частному, от этого частного как нового главного к новому частному. Архитектор «должен стараться, чтобы взор, привлеченный красотою целаго здания устремлялся сначала к главным онаго частям, которые без труда усмотреть можно, и обозря оныя, обращался бы с удовольствием и на прочия части, коих употребление, надобность и согласное соединение с целым довольно бы понятны были», – писал первый русский теоретик искусства П. П. Чекалевский.
Следствием симметричных, ритмичных, гармоничных, с привлечением правильных форм построений должна была стать статичность классицистических решений (пространственных, объемных, фасадных и т. д.), в том числе статичность интерьерных образов.
Законы классицизма, как и законы существования мира, были универсальными, т. е. безразличными к национальностям и религиям. Особенности, которые стиль получил в разных странах, были обусловлены либо спецификой этих стран, либо яркой индивидуальностью конкретных мастеров-проектировщиков. Это позволяет анализировать интерьеры классицизма в основном единым блоком.
До сих пор мы рассматривали смену художественных стилей как отклик на появление новой картины мира (в связи с накопленными новыми о нем знаниями). Однако потребность сменить стилистические приоритеты, возможно, созревала и внутри предшествовавшего стиля. Существует точка зрения, что подобно вечному «маятнику», активные формы искусства (в нашем случае барокко и рококо), в конце концов, имманентно должны были смениться противоположными – спокойными, уравновешенными. И наоборот. Если это так, то мировоззренческие изменения совпали с назревавшими внутри рококо тенденциями.
Заметим также, что утвердившееся еще в рококо commodité (франц. commodité – удобство), т. е. пристрастие к удобству, уже никуда не исчезнет и останется своеобразной слагаемой интерьера во всей его дальнейшей истории.
Родиной новых идей в интерьере стала Франция – законодательница вкусов в Европе. В салоне королевы в Малом Трианоне (арх. А.-Ж. Габриэль, 1762–1768 гг.) можно видеть симметричность и регулярность построения, ясные прямые, циркульные и полуциркульные формы, деликатный декор, спокойствие и статичность, т. е. все проповедуемые классицизмом новшества (ил. 1).

Ил. 1. Салон королевы в Малом Трианоне, Версаль. Арх. А.-Ж. Габриэль. 1762–1768 гг.
Новый художественный язык, развиваясь и обогащаясь, быстро завоевывал европейское пространство.
Две стадии из трех, которые в своем развитии прошел классицизм, ранняя и зрелая, приходятся на 2-ю пол. XVIII в. Поздняя (примерно 1-я четв. XIX в.) в целом ряде стран получила настолько яркие особенности, что стало возможным говорить уже об ином стиле – ампире (см. далее).
Интерьеры классицизма рассмотрим на примере дворцов и богатых жилых домов.
Дворцы и богатые жилые дома
Устройство
Как и в предшествовавшие времена, дворцы и богатые жилые дома классицизма имеют парадную, жилую и хозяйственную части.
В их построении используются симметрия и ритмичность, пришедшие в архитектуру еще во времена Ренессанса. Как и ранее, фасады дворцов и домов симметричны, в интерьере используются уравновешенные пространственно-планировочные композиции, комнаты выстроены анфиладами. Масштабы сооружений, в том числе и интерьеров, еще в эпоху рококо пришли в полную гармонию с человеком, утратив нарочитую грандиозность. Классицистические сооружения и, соответственно, интерьеры относительно компактные, анфилады комнат укоротились, центральная ось симметрии зафиксирована залом – самым важным и значительным помещением, пропорции интерьеров, как и фасадов, гармоничные.
Согласно правилам классицизма, каждое помещение анфилады также является самостоятельной композиционной единицей, получает симметричное построение, при этом ось симметрии каждого из помещений перпендикулярна анфиладной оси. При подобном построении восприятие анфиладного пространства, утратив прежнюю непрерывную «текучесть», обретает своего рода пунктирно-точечный характер («пунктир» – движение вперед, «точка» – остановка на оси симметрии помещения).
В соответствии с законами классицизма отдельные помещения получают прямоугольные или циркульные планы или планы, в которых эти две основные формы композиционно соединяются. Аналогичные формы используются в перекрытиях.
Отмеченные композиционные приемы обеспечивали ясный и логичный, т. е. правильный, как того требовал классицизм, архитектурный образ (ил. 2).

Ил. 2. Каменостровский дворец в Санкт-Петербурге. Под руководством Ю. М. Фельтена.1775–1781 гг.
1. Внешний вид. 2. План
В рассматриваемый период классицистические приемы применялись повсеместно, однако в разных странах возникали некоторые особенности.
Ф р а н ц у з с к и й к л а с с и ч е с к и й о т е л ь
Напомним, что отелем во Франции называли городской жилой дом-особняк. Французский отель классицизма похож на отель периода рококо, уходящий корнями к ренессансным построениям Альберти и Палладио. В образце отеля кон. 1760-х гг., как и ранее, внешние объемы симметричны, а окна расположены регулярными параллельными осями. Но теперь природа симметрии видится в свете естественных законов устройства мира, и в интерьере симметрия выражена с много большей, чем раньше, пристрастностью (ил. 3).

Ил. 3. Проект отеля. Арх. Ж.-Ф. Блондель. 1771 г.
В основу построения положены две взаимно-перпендикулярные оси. Одна главная ось симметрии проходит через середину дома, относительно нее уравновешена вся пространственно-планировочная композиция дома (отклонения от полного подобия правой и левой частей отеля вызваны конкретными бытовыми требованиями). Вторая главная ось – анфиладная. Местом пересечения осей является по-прежнему салон в центре дома; к нему справа и слева обращены анфилады комнат.
Салон и комнаты, начиная с эпохи рококо, когда утверждается commodité, относительно небольших размеров (по сравнению с барочными помещениями). Они имеют преимущественно прямоугольные очертания, но у салона углы еще со времени рококо скруглены. В данном примере углы скруглены также у вестибюля. В «Cours d’architecture ou Traité de la Décoration, Destribution et de Consruction des Bâtiments…»(«Курс архитектуры или трактат по отделке, планировке и строительству зданий…» (Paris, 1771–1773) французский архитектор эпохи Просвещения Ж.-Ф. Блондель рассматривает различные формы помещений (круглые, овальные, прямоугольные, квадратные) и формы перекрытий в них (плоские, сводчатые, на падугах), приводит правильные, т. е. соответствующие пропорциональным законам, соотношения длины, ширины и высоты.
Пристрастность к симметрии не ограничивается пространственно-планировочной композицией дома. По возможности симметрично решается также пространство каждой комнаты и, более того, каждая ее стена. В приведенном примере (см. ил. 3) в центральном салоне трем окнам соответствуют на противолежащей стене дверной проем в центре и соответствующие ниши по сторонам. Симметричны и продольные стены, хотя анфиладные дверные проемы на них изначально смещены к оконной стене. Как добиваются симметрии? В центре одной из продольных стен установлен камин, по сторонам которого зеркально расположены две идентичные анфиладные двери: одна из них подлинная, другая фальшивая. Противоположная продольная стена получает аналогичное решение, только на ней отсутствует визуально выраженный центр. И далее аналогично, с устройством ложных анфиладных дверей, решены и другие помещения на второй композиционной оси отеля, причем камин устраивается в середине продольной стены, которая первой открывается взору на траектории при выходе из салона.
В отеле существуют три вида апартаментов: парадный, общественный и жилой.
Апартамент – несколько комнат одного назначения, но каждая комната апартамента может иметь частное использование.
Парадный (apartement de parade) предназначен для деловых, как правило, утренних визитов. В него обычно входят вестибюль, салон, зал для совещаний (de conseil), приемные комнаты перед кабинетом, кабинет (le cabinet), парадная спальня (по примеру Версаля) и др. В указанном примере (см. ил. 3) справа от парадного апартамента есть также комнаты для личного пользования хозяина дома. В парадный апартамент порой включали будуар (женский кабинет).
Общественный (apartement de société) апартамент – для сбора семьи и приема близких друзей. В нем бывают зал для балов (de bal), для концертов (de concert), для праздников (de festin), для гостей (de companie) и др. Обеденная зала (á manger) расположена в стороне, чтобы приготовления к застольям не препятствовали движению по главной анфиладе.
Парадный и общественный апартаменты устраиваются по разные стороны салона, но сам салон входит в каждый апартамент. В случае праздника они объединяются в единый ансамбль.
Жилой (apartement de commodité) апартамент располагают в отдельном жилом этаже, так как в жилой части дома должно быть тихо и покойно. Комнаты в нем менее просторные и хорошо отапливаемые. Они по-разному компонуются в группы, предназначенные для членов семьи. Сквозь весь этаж часто проходит длинный коридор, обеспечивающий изолированность групп.
Между этажами, как и в Италии, устроены антресоли, подняться в которые можно по специальной лестнице. Как они организованы, не ясно.
Антресоль (франц. entresol) – полуэтаж, встроенный в объем основного этажа.
Служебные и хозяйственные помещения устраивались вне этого главного ядра дома.
Рассмотренная схема отеля оставалась популярной до конца XVIII в. (ил. 4).

Ил. 4. Отель де Bourbon-Condé. Арх. A.-T. Броньяр. 1782(?) г.
Наряду с этим, появляется новый тип дома. Он меньшего размера, его объем тяготеет к кубу, а план часто утрачивает симметричный характер (ил. 5).

Ил. 5. Отель Гимар. Арх. К.-Н. Леду. Между 1770 и 1773 гг.
1. Фасад. 2. План нижнего этажа. 3. План верхнего этажа с театром над входом
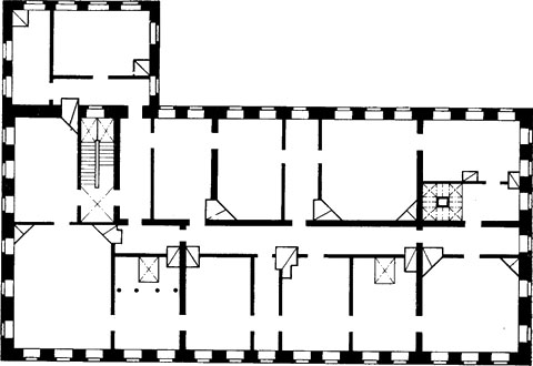
Б о г а т ы й р у с с к и й д о м к л а с с и ц и з м а
В русских дворцах и домах дворцового типа при построении интерьеров по-прежнему господствовала симметричная пространственная композиция. Однако в богатых жилых домах классицизма пространственное решение интерьеров получило свои особенности.
К нач. 1760-х гг. русские богатые жилые дома имели чаще три этажа. Парадные комнаты с главным залом в центре и обращенными к нему анфиладами обычно располагались во втором этаже. Выше (но частично и во втором этаже) устраивались анфилады жилых покоев. Для служебной части по традиции отводился нижний этаж.
В классицизме на структуру интерьера воздействовали два главных фактора. Во-первых, завоевавшее Европу commodité, ставшее, наконец, актуальным в России к моменту появления классицизма. Стремление к удобству затронуло в первую очередь жилой этаж дома с традиционно проходными комнатами. Здесь появляется коридор, связанный дверными проемами с помещениями в жилых анфиладах. В результате, перекрывая те или иные анфиладные двери, можно было формировать отдельные жилые «половины» (в России их станут называть также жилыми апартаментами) из одной, двух, трех комнат. Новая коридорно-апартаментная система позволяла не только создавать в жилом этаже изолированные апартаменты, но при необходимости их трансформировать (ил. 6).

Ил. 6. Жилой этаж с коридором.
План жилого этажа в доме Собакина на Кузнецком мосту в Москве. После 1762 г.
Дальнейшее стремление к удобству приведет к расширению жилой части за счет уменьшения парадной.
Второй фактор – художественный. В результате его воздействия изначально симметричная и адекватная требованиям классицизма структура парадной части оказалась разрушенной. Произошло это так. Как отмечалось ранее, Россия, которая в 1-й пол. XVIII в. стремительно постигала опыт европейских стран, шагнула в классицизм, почти минуя стиль рококо, прямо из барокко. Обычно на новшества в интерьере первой отзывается система его декорации, в то время как собственно структурные нововведения происходят по мере более глубинного «вживания» в стиль. Так и случилось с богатыми жилыми домами. В них относительно легко внедрилась новая классицистическая декорация (см. далее), но происходившие параллельно структурные преобразования все еще являлись своеобразным откликом на стилистические установки предшествовавшего барокко. Владельцы богатых жилых домов по-прежнему оставались в плену барочных безграничных дворцовых анфилад и жаждали привнести в свои дома аналогичные пространственные эффекты. Но, поскольку жилой дом невозможно было «бесконечно» увеличивать, желанного эффекта добивались иными способами. Например, располагали на парадной анфиладной оси окно, которое «выводило» внутреннее пространство в наружную безбрежность. Но еще более интересный эффект возникал, когда на анфиладной оси устанавливали большое зеркало, – в нем поистине безгранично множились нанизанные на анфиладную ось помещения.

