
Советы по строительству бани
Доски пола свободно уложите на лаги, применяя гидроизоляцию. При этом их не прибивайте, а между досками и лагами настелите резиновые прокладки. Сами доски сделайте с выпуклой серединой для того, чтобы с них легче сливалась вода. Доски протекающего пола укладывайте не плотно, а с зазором 5 мм для обеспечения свободного слива воды при набухании досок.
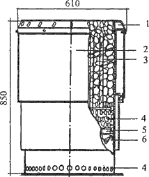
При устройстве непротекающих полов уложите доски пола так, чтобы один их конец был ниже другого. Кроме того, обязательно сделайте лоток для сбора воды и направления ее в приямок. Этот лоток прикрепите под нижним концом досок. Защитить пол моечной от влаги можно, покрыв его линолеумом так, чтобы он не пропускал воду (рис.40).

Рис. 40. Деревянный непротекаюший пол: 1 – пароизоляция стены; 2 – внутренняя обшивка стены из арболита или кирпича; 3 – гидроизоляция; 4 – лаги; 5 – фундамент; 6 – лоток; 7 – лаги для желоба; 8 – непротекаюший пол.
Вентиляция пола
Пол в бане должен хорошо просыхать, а пространство под полом – вентилироваться. Обычно для обеспечения вентиляции пола бани располагают поддувало печи-каменки ниже пола.
Можно сделать сообщающимися подпольное пространство и поддувало печи через съемный короб из жести.
В одном из углов моечной вы можете установить вентиляционный стояк из асбестоцементной трубы. Этот стояк нужно вывести выше крыши. Как и на дымоходной трубе, на вентиляционном стояке установите дефлектор. Многие делают большую ошибку, выводя вентиляционный стояк на чердак бани. Зимой из-за высокой влажности на чердаке образуется несвежий воздух, которым будет наполняться и вся баня.
Острожка пола и установление плинтусов
Острожка полов выполняется методом острогивания неровностей на 1,5–2 мм при помощи электрорубанка. Предварительно нужно очистить пол от мусора. Затем не забудьте проверить, все ли шляпки гвоздей утоплены. Между плинтусом и стеной установите прокладки из мягкой ДВП или другого материала и полосок рулонного водоизолирующего материала. Верхний конец полоски необходимо завести под обшивку, а нижний конец загнуть внутрь помещения. Затем нужно смочить пол водой при помощи распылителя (метелки, кисти). В заключение установите плинтусы между стеной и полом. Крепите плинтусы через каждые 70 см на деревянные пробки.
Пол в бане нельзя покрывать лаком. Главное условие для обеспечения сохранности пола, как и стен, – хорошо просушить после использования бани.
Выполнение бетонного покрытия
Предварительно сделайте подсыпку из гравия и песка слоем толщиной до 15 см. Подсыпку необходимо уплотнить, сделав уклон в строну приямка. По этому покрытию уложите один слой бетона толщиной 3 см. Затем – слой утеплителя из минераловатных матов, войлока, пропитанного битумом. После этого уложите еще один слой бетона. Затем выровняйте это покрытие, проложив сверху тонкий слой цементного раствора.
Следующий этап – укладка на пол керамической плитки и установка на приямок водосточной решетки.
Вместо плинтуса на бетонном полу зазор между полом и стеной заделывают битумом или приклеивают на битум полоски рулонного водоизолирующего материала (рис. 41).
Бетонный пол нуждается в покрытии съемными деревянными решетками.

Рис. 41. Бетонный пол: 1 – внутренняя обшивка каркасной стены; 2 – пароизоляция;3 – гидроизоляция; 4 – фундамент; 5 – шебеночно-гравийная подсыпка; 6 – бетон с теплоизолирующим наполнителем; 7 – цементная стяжка; 8 – покрытие из керамических плиток; 9 – водосливная труба; 10 – деревянная решетка; 11 – водосточная решетка; 12 – гидрозатвор; 13 – приямок.
Облицовка полов метлахской плиткой
Полы из метлахской (керамической) плитки устраивают в моечной бани на бетонном основании. При этом толщина основания раствора должна быть равна 20 мм, ширина швов – 2–3 мм, максимальная крупность зерен – 3 мм, расход цемента на 1 м3 раствора – 450 кг.
Нанесите на основание пола цементно-песчаный раствор и разровняйте его. Выровненную поверхность раствора посыпьте цементом (0,5 кг на 1 м). Уложите плитку на раствор и прижмите, постукивая молотком, к основанию. Спустя 1–2 дня заделайте швы цементным раствором. Для окончательной отделки поверхность пола посыпьте цементом и загладьте нагретой кельмой.
Если в полу из керамической плитки повреждена или разбита одна плитка, ее можно заменить. Для этого выбейте зубилом поврежденную плитку и удалите весь раствор, уложенный под ней. Затем основание смочите водой, уложите свежий раствор и плитку. После этого затрите швы.
Земляные полы
Если вы хотите максимально приблизить свою баню к старорусской, то сделайте в парной земляной пол. Для этого на расстоянии 50 см от фундамента по периметру парной выберите грунт на глубину 45–50 см, утрамбуйте подготовленную площадку и засыпьте ее до начального уровня мелким гравием и песком. Сверху можно настелить доски.
Двери бани
Двери бани должны быть одностворчатыми, небольшого размера (с высотой 160–170 см и шириной 65–80 см), легкими, со слоем утеплителя и пароизоляцией. В парной и моечной дверь не должна быть шире 75 см. Обязательно утройте порог в 30 см у входной двери. У двери из парной в моечную порог делать необязательно. Наоборот, между дверью и полом должен быть зазор в 4–5 см. Главное требование – все двери должны открываться наружу.
Изготавливайте двери бани на шпонках из толстых шпунтованных досок с выбранными четвертями. Это достаточно трудоемко. Обычно такую дверь делают из двух рам. Для этого вам понадобятся 4 вертикальных и 8 горизонтальных брусков толщиной 30 мм и шириной 100–120 мм. Угловые соединения выполняйте внахлест с шипом.
Наружную раму обшейте с двух сторон ДВП, затем проложите слой утеплителя из войлока, минераловаты, пенопласта. Затем наложите внутреннюю раму меньших размеров на наружную раму. Скрепите их винтами, заполнив внутреннее пространство тепло– и пароизоляцией. Затем обшейте дверь тонкими досками, пропитав олифой их внутреннюю поверхность и нижний торец.
Иногда делают двери бани с наружной теплоизоляционной обивкой, как в жилых домах. В этом случае обязательно утеплите края обивки валиком из эластичных герметизирующих профилей.
Двери для моечной и предбанника можно сделать из одной рамы. К ней прикрепите с двух сторон стеклопластиковые листы, заполнив зазор слоем утеплителя.
В заключение обшейте дверь рейками, пропитав олифой их внутреннюю поверхность и нижний торец. Это послужит гидроизоляцией. Можно верхний слой двери сделать из водостойкой фанеры или ДВП.
Изготавливайте все двери на 5 мм уже расстояния между четвертями коробки, чтобы их не заклинило при набухании.
Освещение моечной и парильни можно обеспечить через окна, сделанные в дверях.
Большое значение для пользования дверями бани (особенно парной) имеют запоры: во-первых, все запоры должны находиться внутри комнаты; во-вторых, нельзя устанавливать щеколды и английские замки – в противном случае парильщик может нечаянно запереться в бане; в-третьих, нужно делать по два запора – сверху (деревянный засов или задвижка) и снизу. Это сделает дверь более герметичной; в-четвертых, во избежание ожогов все засовы, ручки и крючки в бане должны быть деревянными.
Окна бани
Баня не должна быть сильно освещена. Уютную атмосферу создает полумрак. Поэтому окно в бане следует делать небольшим (5 % площади пола).
Пропорциональное отношение длины к ширине окна составляет: 30×40, 40×60, 60×80 см. Сделайте окно высоко на стене, чтобы можно было смотреть на живописный пейзаж, лежа или сидя на полке. На такое окно занавесок не вешают.
Окна делайте из двух рам. Для них заготовьте рейки сечением 30×50 мм. Угловое соединение выполняйте внахлест с шипом. Такой тип соединения прост, его можно выполнить при помощи ручной пилы. После подгонки угловые соединения рамы склейте и закрепите шипами. Пазы для стекла образуйте накладками из реек сечением 10×30 мм, которые прикрепите, отступив на 10 см с внутренней стороны.
Раскраивайте стекло так, чтобы получилось меньше отходов, а остатки можно было использовать для остекления переплетов веранды. Размеры стекла должны быть на 3–5 мм меньше, чем расстояние между бортами фальцев переплетов, а фальцы закрыты стеклом не менее чем на 3 /4 своей ширины. В этом случае стекло не расколется при разбухании древесины в процессе эксплуатации.
Угловые соединения накладок выполняйте впритык. Накладки крепите к основной раме с помощью клея и шипов. Замажьте все щели между стеклом и рамой известково-цементным раствором или другим изоляционным материалом.
Утеплите сдвоенные (свинчивающиеся) окна пастой из мела и клея для обоев (2:1) и небольшого количества воды. Заполните этой пастой зазор между створками. В этом случае окно не будет потеть.
Двойные рамы обеспечат двойное остекление окна бани (рис. 42).

Рис. 42. Окно бани: 1 – раскладка; 2 – отлив; 3 – коробка; 4 – каркас; 5 – обшивка бани; 6 – оконный блок; 7 – наличник; 8 – уплотняющий шнур; 9 – замазка; 10 – стекло.
Веранда и крыльцо бани
Возле бани можно устроить место отдыха или солярий, пристроив к ней террасу или веранду, обвитую виноградом или другими вьющимися растениями. Они закроют баню от дождя, ветра и от посторонних глаз, украсят ее (особенно летом), создадут интимную обстановку и хорошее настроение. При пристройке веранды к уже существующей бане надо всегда помнить о том, что вся ее прелесть в близости к природе – к саду или цветнику.
Веранда должна вмещать лежанку, стол и стулья. Вход на веранду с улицы лучше делать ближе к двери в баню, чтобы больше оставалось места для мебели. На большой веранде дверь может быть посередине стены, тогда по обе ее стороны от входа останутся места для мебели. На веранде размером 3×4 м дверь лучше располагать в торце. В плане бани веранда может быть объединена с предбанником или тамбуром.
Веранда – как бы промежуточное помещение между баней и садом, и ее остекление желательно делать большим по площади, с простыми тонкими переплетами. Не стремитесь делать окна веранды с частыми и очень сложными переплетами. Это нецелесообразно по многим причинам:
– сложно в изготовлении;
– требует большого расхода материалов;
– густая «сетка» стекол препятствует солнечному свету и обзору сада.
Возведение веранды
Сделайте под веранду легкий столбчатый фундамент. На него положите нижнюю обвязку из бруса или кантованного тонкого бревна размером примерно 12×12 см. Затем установите угловые стойки, на которые укрепите верхнюю обвязку, стропила и кровлю.
Подоконная доска должна находиться ниже, чем подоконники в комнатах (на высоте 45–60 см от пола). Стену под окном зашейте тесом «в шпунт» или «в елку». Между подоконной доской и верхней обвязкой установите рамы окон веранды.
Количество элементов рам зависит от величины веранды. В любом случае между двумя открывающимися створками целесообразно поставить одну глухую, неоткрывающуюся раму. Другие створки навесьте на ее вертикальные стойки. Это позволит сделать вертикальные стойки всех рам одинаковыми и не очень большой толщины.
Рамы можно делать высотой 170–180 см при ширине 50–55 см. Горизонтальный брус толщиной 2,5 см в зависимости от высоты рамы установите через 40–45 см.
Теперь нужно подумать о крыше веранды. Для того чтобы она подошла под свес кровли бани, пол веранды нужно опустить на 30 см (на две ступеньки) ниже уровня пола в бане.
Для устройства солярия под потолком веранды установите лампы инфракрасного и ультрафиолетового излучения, позволяющие облучаться без освещения (в темноте) или при слабом освещении. Желательно сделать рядом с баней бассейн или большую емкость с холодной водой для контрастных водных процедур.
Возведение крыльца
Крыльцо также может украсить баню и придать ей особенность. Оно не только защищает от непогоды, но и является дополнительной удобной площадью перед дверью.
Основные требования к крыльцу – эстетика, простота формы, удобство. На нем можно поставить скамейку для отдыха, приделать к нему решетку для вьющейся зелени, установить столбы, подпирающие навес, сделать ступени и перила. Все это еще более украсит баню.
Большинство из того, о чем говорилось выше, давно нашло отражение в разных типовых проектах бань. Если же такие проекты по каким-либо причинам не представляется возможным использовать, надо внимательно изучить их, стараясь взять все наиболее рациональное и самому построить красивую и удобную баню.
Вентиляция бани
Вентиляция бани предназначена для обеспечения нужного теплового режима, просушивания помещения и притока свежего воздуха. Для вентиляции бани используется печь-каменка через забор воздуха для топки. Помещения моечной, парной и предбанника могут вентилироваться через двери, форточки, отдушину и специальные вентиляционные каналы.
С этой целью обязательно устройте над верхним полком отдушину в виде прямоугольного или круглого отверстия в стене диаметром 20 см. Заглушка отверстия в виде обитой мягким материалом заслонки с деревянной ручкой должна быть скользящей. Это обеспечит регулирование вентиляции.
Для дополнительной вентиляции и притока в баню свежего воздуха устройте вентиляционное отверстие возле печи-каменки на высоте полуметра от пола. Отвод воздуха в это отверстие возможен лишь при наличии тяги, создаваемой специальной вентиляционной трубой или дымовой трубой печки-каменки. Можно устроить дополнительное отверстие в нижней части двери. Эти отверстия тоже закройте скользящей сплошной задвижкой или в виде перфорированной пластины.
Проветривайте чердак через оконце, которое зимой перед топкой бани закрывайте.
В том случае, когда топочное отверстие печи-каменки расположено в предбаннике, нужно обеспечить отвод сырого и холодного воздуха из-под пола. Пол в этом случае будет быстро нагреваться и быстро сохнуть. Если же топочное отверстие расположено в парной, то поддувало обязательно должно находиться ниже уровня пола.
Печь-каменка
Каменка – так ласково называли на Руси банную печь.
Печь-каменка – «сердце» бани. Какова печь – такова и баня.
Сходить в баню и у наших предков означало прежде всего хорошенько пропотеть, избавившись тем самым от хвори и недугов, очистить организм, зарядиться бодростью и здоровьем. Но какой жар без хорошей печки?
Ведь именно от печки зависит, станет поход в баню волшебным исцеляющим средством или заурядным смыванием грязи. Если печь тепла не держит да пар сыроват – никакого удовольствия от бани. Поэтому строительству печи раньше уделялось особое внимание. Да и сама печь представляла собой сложное сооружение, состоящее из фундамента, топки, камеры с камнями для получения жара, дымоходов, поддувал.
В современных банях применяют электрические нагреватели-калориферы или трубы парового отопления.
Но они не могут конкурировать с хорошей печью-каменкой по многим причинам:
– не могут обеспечить регулирование влажности воздуха;
– не могут обеспечить накопление и быстрое выделение тепла;
– быстро остывают.
Печь-каменка обычно устанавливается в углу у двери. На противоположной стороне размещают окно, под ним – скамью для мытья. Печь-каменка может топиться дровами, углем, жидким топливом, газом. Сейчас распространены электрические печи-каменки.
При постройке бани учтите, что тяга в печи будет зависеть от высоты трубы.
Основные требования к устройству печи-каменки следующие.
Размер печи должен зависеть от вида ее отопления, требуемой мощности и площади парной.
Малогабаритные печи устанавливают под полком или в нише стены в парильнях с площадью до 2 м2.
Печь-каменку располагают так, чтобы одновременно нагревались и парная, и моечная, и предбанник. Она должна быть подальше от легко возгораемых частей помещения. Печь-каменка должна занимать не более 0,15 м2 полезной площади.
Во избежание ожогов печь-каменку необходимо оградить теплоизолирующим материалом (деревом).
Тепло от печи должно передаваться на человека со всех сторон, главным образом, путем конвекции нагретого воздуха. Поэтому температура стенок печи должна быть как можно ниже, а отражательная способность стен бани – как можно больше.
Чем толще стенки печи, тем медленнее она нагревается и дольше сохраняет тепло.
Печи-каменки длительного режима действия
Печи-каменки в русской бане могут работать в длительном или периодическом режиме.
Печи длительного режима, как правило, имеют тонкие стенки и небольшой объем камней. Отапливаются эти печи газообразным, жидким или твердым топливом. При этих видах топлива температура нагрева регулируется изменением количества поступающего в топку топлива.
Печи-каменки на твердом топливе
В семейных банях используют печи-каменки, работающие в основном на твердом топливе. В качестве твердого топлива применяются уголь и дрова. Лучше всего топить баню березовыми дровами, которые дают много жара, не искрятся и не «стреляют». Если вы заготовили для топки печи-каменки дрова хвойных пород, то к концу топки добавьте в печь несколько осиновых поленьев или картофельные очистки. Таким образом вы избавитесь от копоти и дыма.
Печь-каменка, размером 400×505×750 мм с двойными боковыми стенками создает максимальную температуру 140 °C в парной объемом 10 м3(рис. 43). Она устроена так, что через щели в корпусе в верхнюю зону камеры сгорания поступает вторичный воздух. Дым от сгорания топлива проходит по каналам вокруг бункера для камней и выводится из печи в дымоход через переднее отверстие. Зазоры между боковыми стенками выполняют две функции: служат каналами для циркуляции и нагрева воздуха и по ним циркулирует нагреваемая в баке вода.

Рис. 43. Печь-каменка на твердом топливе: 1 – корпус печи; 2 – глазок; 3 – зольник; 4 – колосниковая решетка; 6, 7, 9 – дымоходы; 5 – топливник; 8 – камни; 10 – дымоход; 11 – щели для нагретого воздуха; 12 – водогрейная труба.
Печь-каменка конструкции Ф. И. Мартынкевича
Эта печь соответствует конструкции и размерам бани, схематически изображенной на рисунке 7 (см. «Семейная баня на 6–8 человек»).
Печь в такой бане имеет много достоинств:
– имеет невысокую себестоимость;
– занимает мало места;
– быстро нагревается;
– позволяет пользоваться сухим паром длительное время;
– экономична в отношении расхода топлива;
– ею можно нагревать воду в количестве, достаточном для всей семьи;
– отапливает не только парильню, но и моечную;
– безопасна, исключает возможность возникновения пожара, отравления угарным газом;
– высушивает всю баню;
– не требует частого ухода.

Рис. 44. Печь-каменка со встроенным баком для воды конструкции Ф. И. Мартынкевича.
1 – кирпичный фундамент; 2 —дверка поддувала; 3 —дверка топливника; 4 – емкость для воды; 5 – металлическая сетка; 6 – зазор между каменной засыпкой и надевающейся водой; 7 – отверстие для залива воды; 8 – дымоход; 9 – каменная засыпка; 10 – сливная труба с краном.
Эта печь-каменка (рис. 44, 45) устанавливается на основание из кирпича. Она имеет П-образную форму и изготавливается из листовой стали толщиной 3 мм. Зазоры между двойными стенками используются в качестве емкости для горячей воды (6 л), которая закипает в печи через 40–50 минут после того, как ее затопят. Камни и вода нагреваются от стенок топки. Для того чтобы вода не забирала температуру от камней, между ними сделан зазор в 10 мм.
Труба дымохода нагревает воду в баке на 10 л, который приварен вокруг нее. В нагретой воде из этого бака можно стирать даже на следующий день.
Печь-каменка для дачи
Для корпуса этой печи вы можете использовать металлическую бочку. Вырежьте у нее в дне отверстие размером 450×250 мм, через которое будет просыпаться зола. Затяните это отверстие решеткой из металлических прутков, приварив их к днищу бочки. Расстояние между прутками решетки – б мм.
Наверху бочки оставьте кромку шириной 10 мм, на которой будет стоять бак с водой.

Рис. 45. Схема применения печи конструкции Ф. И. Mapтынкевича: 1 – кирпичный фундамент печи; 2 – поддувало; 3 – колосниковая решетка; 4 – топливник; 5 – емкость с водой; 6 – каменная засыпка в металлической сетке; 7 – утеплитель; 8 – гидроизоляция; 9 – пароизоляция; 10 – вагонка; 11 – асбест; 12 – лист жести 1,5–2 мм; 13 – стена между парной и моечной; 14 – дымоход; 15 – задвижка, регулирующая тягу; 16 – бак с водой на 10 л; 17 – ванна с холодной водой; 18 – скамейка.
Место соединения бака и корпуса бочки промажьте смесью глины и песка в соотношении 1:1. Чуть ниже водяного бака приварите трубу для дымохода.
В корпус печи вварите трубы, которые затем заполните каменной засыпкой для получения пара, лишенного угарного газа. В такой печи парообразование будет непрерывным, так как камень отделен от топки. По этой причине не нужно гасить печь во время промывки.
При непрерывном горении топки вода в баке начнет закипать. Поэтому отлейте ее часть и долейте холодной воды. Влажность атмосферы бани не будет слишком сильно повышаться.
Для этой печи соорудите кирпичный фундамент на листе жести. Сделайте в фундаменте выемку для подзольника.
Во избежание повреждения стенок печи-бочки из-за высоких температур обложите их огнеупорным кирпичом (рис. 46).

Рис. 46. Печь-каменка для дачи: 1 – водогрейный бак; 2 – глино-песчаная замазка; 3 – каменная засыпка; 4 – топка; 5 – облицовка кирпичом; 6 – фундамент; 7 – подзольник.
Электрокаменки
В современных банях нагрев до температуры 300 °C чаще всего осуществляется электрокаменкой со встроенным устройством автоматического контроля и регулирования (финские, шведские, германские печи). Устройство отключает электронагреватель при превышении температуры стенок выше допустимой нормы, а также при погасании пламени в топке при попадании на печь, например, полотенца.
Электрокаменка в семейной бане должна быть оборудована ограничителем температуры, который отключает электронагреватель при достижении температуры воздуха в помещении 140 °C, и реле времени, которое отключает электронагреватель через заданное время непрерывной работы (до 5 часов). Зарубежные фирмы выпускают много видов электрокаменок. Если вы обладаете достаточными средствами, то лучше приобрести хорошую и надежную печь.
К сожалению, наша промышленность почти не выпускает такие печи малой мощности для семейных бань. Отечественные электокаменки предназначены в основном для общественных бань.
Самая известная из них – электрическая печь-каменка, которая выпускается Новосибирским заводом электротехнического оборудования. Она имеет мощность 12 кВт. В ее металлическом корпусе помещается камера с ТЭНами. Поверх крышки камеры уложены камни. Принцип работы этой печи таков: воздух, проходя через отверстия, разделяется на два потока. Один поток нагревает камни, а другой – идет по кольцевому зазору, окружающему кожух (рис. 47).
Вы можете сами соорудить электрокаменку, поставив на электропечь закрытого типа металлическую коробку с камнями. Но предварительно вы должны рассчитать необходимую мощность печи по отношению к размерам вашей бани, объему парной, качеству теплоизоляции стен бани и температуре ее атмосферы.
Рассчитывается мощность печи так: 1 м3 объема парной требует 0,7 кВт мощности печи. Если высота потолка вашей бани равна 2 м, то для обогрева 1 м2 площади парильни вам потребуется 1,4 кВт энергии.

Рис. 47. Электрокаменка Новосибирского завода электротехнического оборудования: 1 – корпус; 2 – камера; 3 – ТЭНы; 4 – отверстия; 5 – изоляторы; 6 – кронштейны.

