
Странный дом

Укэцу
Странный дом
Tok. Фудосан-мистери. Расследования по чертежам

HENNA IE © Uketsu 2021
Russian translation rights arranged with ASUKA SHINSHA, INC. through Japan UNI Agency, Inc., Tokyo

Художественное оформление К. Гусарева
Иллюстрация на обложке ЕyeEmpty

© Бонадык Н.А., перевод на русский язык, 2024
© Издание на русском языке, оформление.
ООО «Издательство Эксмо», 2025
Перед вами план дома.

Заметили что-нибудь странное?
На первый взгляд это совершенно обычный дом. Но если рассмотреть планировку внимательнее, можно заметить много необычных, даже зловещих деталей. С каждой секундой тревога нарастает, и наконец из разрозненных мелочей складывается правда об этом доме.
Ужасающая, невероятная правда.

Глава 1
Странный дом
Вопрос от знакомого
Я писатель-фрилансер, в основном меня интересуют такие темы, как мистика и оккультизм. По работе мне часто приходится сталкиваться с историями о паранормальных явлениях или загадочных происшествиях. И очень часто в них фигурируют дома. «Со второго этажа доносятся звуки шагов, хотя там никого нет…», «Сижу один в гостиной, но чувствую, что за мной кто-то наблюдает…», «В пустом шкафу переговариваются несколько голосов…» – каких только страшилок о домах с призраками я не слышал.
Но тот дом был не похож на другие.
* * *В сентябре 2019 года мне позвонил знакомый по фамилии Янаока, сказал, хочет со мной посоветоваться. Янаока работает менеджером по продажам в одном издательстве, благодаря чему мы и познакомились с ним несколько лет назад. С тех пор мы поддерживаем связь, иногда встречаемся, чтобы вместе пообедать.
Янаока ждал рождения ребенка, поэтому решил, что им с женой пора обзавестись собственным домом. Он каждый день допоздна пропадал на сайтах агентств недвижимости, пока наконец ему на глаза не попался идеальный вариант: двухэтажный дом в тихом зеленом районе в черте Токио, расположенный недалеко от железнодорожной станции. До этого там уже кто-то жил, но сам дом был практически новым, его построили всего несколько лет назад. Янаока с женой съездили на осмотр и остались в полном восторге: дом оказался очень светлым и просторным. Однако в его планировке была одна странная деталь.
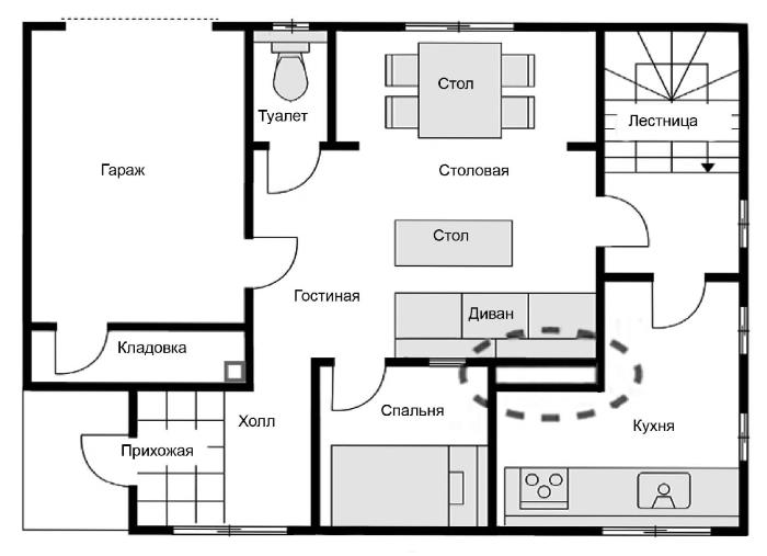
На первом этаже, между кухней и гостиной, находилось загадочное пустое пространство. В него не вела никакая дверь, поэтому попасть внутрь было невозможно. И в агентстве недвижимости тоже не смогли объяснить, зачем оно нужно. Не то чтобы это пространство могло как-то мешать в быту, но само его наличие не давало Янаоке покоя. В итоге он начал сомневаться, покупать ли ему вообще этот дом.
Первый этаж

Он решил посоветоваться именно со мной, видимо, потому, что я часто имею дело со сверхъестественным. «Загадочное пустое пространство…» Это и правда звучало таинственно, так что мне стало любопытно. Но я совершенно не разбираюсь в архитектуре и мало что могу понять, глядя на планировку дома.
Поэтому я решил обратиться за помощью.
Курихара
У меня есть знакомый по фамилии Курихара: он работает проектировщиком в крупном архитектурном бюро. А еще он большой фанат мистики и хорроров. Если кто-то и мог помочь мне разобраться с тайной этого дома, то только он.
Я пересказал Курихаре историю Янаоки, и он, кажется, заинтересовался, поэтому я отправил ему на почту планировку дома, а затем позвонил, чтобы узнать, что он обо всем этом думает.
Далее идет запись нашего с Курихарой разговора.
Автор: Курихара, привет! Спасибо, что нашел для меня время.
Курихара: Да ладно. По поводу твоего плана…
Автор: Ты смог понять, зачем нужно это пустое пространство, в которое невозможно попасть?

Курихара: Нет. Единственное, что я могу сказать с полной уверенностью, – оно появилось не в результате ошибки проектировщиков.
Автор: Точно?
Курихара: Да, это понятно из плана: со стороны кухни построили две дополнительные стены. Без них «загадочное пространство» не возникло бы, а сама кухня была бы просторнее. Если ради дополнительных стен пожертвовали площадью кухни, значит, пустое пространство было необходимо.
Автор: Ясно. Зачем же оно могло понадобиться?
Курихара: Вероятно, там планировали дополнительное помещение для хранения. Например, если установить двери со стороны гостиной, получится кладовка. А если расположить их со стороны кухни, внутри можно установить большой сервант. Наверное, в процессе строительства хозяева передумали, или им не хватило денег. Так или иначе, они отказались от идеи установить двери.


Автор: Понятно. А планировку менять было уже поздно, поэтому они просто оставили пустое пространство как есть, так получается?
Курихара: Да, это самое логичное объяснение.
Автор: Значит, ни к каким оккультным практикам оно отношения не имеет.
Курихара: Получается, так. Однако…
Неожиданно я уловил в голосе Курихары напряжение.
Курихара: Для кого строили этот дом?
Автор: Для прошлых владельцев: семейной пары с маленьким ребенком. Всего три человека.
Курихара: Маленьким? Сколько примерно лет?
Автор: Таких подробностей я не знаю… А что, что-то не так?
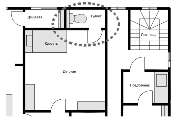
Второй этаж


Курихара: Честно говоря, как только я увидел план, то сразу подумал, что этот дом какой-то странный.
Автор: Вот как? Тебя смутило что-то еще, кроме загадочного пространства?
Курихара: Да, планировка второго этажа. Взгляни на детскую. Ничего не замечаешь?
Автор: Хм-м-м… Что, две двери?.. В детскую ведет коридор, и с обоих его концов установлено по двери.
Курихара: Верно. И расположен он тоже странно. Допустим, ты поднялся на второй этаж. Чтобы попасть в детскую, тебе придется сделать крюк и обойти пол-этажа. Ужасно неудобно, тебе не кажется?
Автор: И правда.
Курихара: А еще в этой комнате нет ни одного окна.

Действительно, на плане в стенах детской я не увидел ни одного значка, обозначающего окно.
Курихара: Обычно родители, наоборот, просят проектировщиков продумать планировку таким образом, чтобы в детскую попадало как можно больше солнечного света. А чтобы ребенку сделали комнату совсем без окон… Такого я еще никогда не видел.
Автор: Может, этому есть какое-то объяснение? Например, у ребенка кожное заболевание, и солнечный свет ему вреден.
Курихара: В таком случае окна достаточно просто занавесить. Совсем отказываться от них – это странно, даже ненормально.
Автор: Ясно.
Курихара: К тому же в этой комнате есть еще одна непонятная деталь. Посмотри на туалет. Судя по расположению двери, в него можно попасть только из детской.
Автор: И правда. Получается, у ребенка был отдельный туалет?
Курихара: Похоже на то.

Автор: Комната без окон и с отдельным туалетом. А чтобы войти в нее, нужно пройти через коридор, по обеим концам которого установлены двери… Звучит как описание тюремной камеры.
Курихара: Да, даже для родителей, склонных к гиперопеке, это перебор. От планировки так и веет желанием полностью контролировать ребенка. Может быть, его даже держали в детской взаперти.
Автор: Значит, ребенок подвергался жестокому обращению…
Курихара: Не исключено. Скажу больше: по-моему, родители не хотели, чтобы их ребенка кто-то увидел. Взгляни еще раз на план второго этажа. Тебе не кажется, что все комнаты расположены так, чтобы скрыть наличие детской? К тому же в ней нет окон. Получается, увидеть ребенка с улицы было невозможно. Можно предположить, что родители держали его под замком и скрывали от окружающих сам факт его существования.
Второй этаж

Автор: Но зачем?
Курихара: Не знаю. Но судя по планировке, в этом доме творилось что-то ужасное.
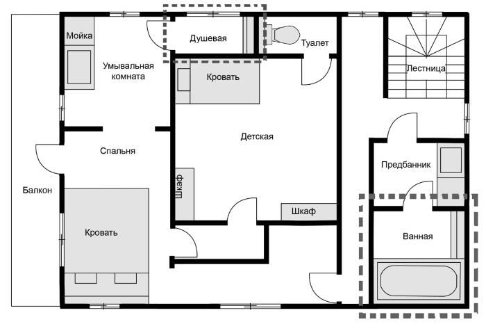
Две ванные
Курихара: Кстати, рядом с детской расположена спальня…
Автор: Ты про комнату с двуспальной кроватью? Наверное, это спальня родителей, да?

Курихара: Да, скорее всего. Она просторная, в отличие от детской. И окон там много.
Мне вспомнились, как Янаока назвал этот дом «светлым и просторным».
Курихара: Но, честно говоря, в ней меня тоже кое-что смущает. В верхней части плана изображена душевая. Получается, умывальная комната играет роль предбанника[1], но при этом она полностью просматривается из спальни.
Автор: И правда, двери-то нет.
Курихара: Согласись, в этом мало приятного: раздеваться или выходить из душа, пока на тебя кто-то смотрит. Пусть даже муж или жена. Может, конечно, эти двое были настолько близки… Какая-то жуткая картина вырисовывается: родители не чают души друг в друге, но при этом держат собственного ребенка под замком. Хотя, может быть, я накручиваю.
Автор: Ну да… Ой, ого!
Курихара: Что такое?
Автор: Кроме душевой на втором этаже есть еще ванная комната. Это ведь тоже необычно?
Второй этаж

Курихара: Ну, не могу сказать, что это что-то из ряда вон, но такая планировка действительно встречается крайне редко. Кстати, в ванной тоже ни единого окна. Зато в душевой есть одно, почти во всю стену.
Автор: И правда. Выходит, все-таки этот дом какой-то жутковатый… Как ты считаешь, лучше его не покупать?
Курихара: Конечно, нельзя делать однозначные выводы на основе одной только планировки, но… На месте твоего знакомого я бы поискал другой вариант.
Я поблагодарил Курихару и положил трубку. А потом снова принялся разглядывать план и живо представил ребенка, заточенного в комнате без окон, в то время как родители безмятежно спят в своей кровати.
Второй этаж

Первый этаж

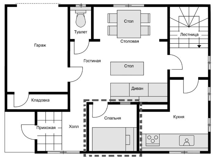
Затем я решил сравнить планы первого и второго этажей. Если смотреть только на первый этаж, то можно решить, что это совершенно обычный дом. Не считая, конечно, загадочного пустого пространства. Кстати о нем… Курихара предположил, что это просто дополнительное помещение для хранения, в которое не стали проделывать дверь. Но что, если он ошибся?
Тут у меня возникла одна догадка. Совершенно дурацкая. Повторяя про себя: «Да ничего это мне не даст», я наложил друг на друга планы первого и второго этажей. Удивительно, но в интересующем меня месте детали планов совпали идеально.
Простая случайность? Или…
Загадочное пустое пространство
Я снова позвонил Курихаре.
Автор: Прости, что опять тебя дергаю.
Курихара: Да ладно, ничего страшного. Что-то случилось?
Автор: Мне все-таки никак не дает покоя это пустое пространство. Я подумал, может, оно как-то связано с планировкой второго этажа?
Курихара: Вот как?
Автор: Поэтому я наложил друг на друга планы первого и второго этажей… и оказалось, что пустое пространство тянется ровно от угла детской к углу ванной. Как будто соединяет эти два помещения.
Курихара: Да, и правда.

Автор: И… Я, конечно, ничего в этом не понимаю и, возможно, скажу глупость, но мне пришло в голову вот что: вдруг пустое пространство на первом этаже – на самом деле тайный проход? Что, если в полу в детской и ванной расположены два лаза на первый этаж, которые «загадочное пространство» соединяет? По нему можно перемещаться из детской в ванную. Родители ведь скрывали наличие ребенка. Но чтобы попасть в ванную, ребенку приходилось бы проходить через коридор, где есть окна. Там его могли заметить с улицы. Поэтому и понадобился тайный проход, который ведет из детской прямо в ванную. А чтобы замаскировать его, в углу комнаты поставили шкаф. Вот такая мысль у меня появилась… Что думаешь?
Курихара: Хм… Ну, идея, конечно, интересная.
Автор: Что, это уже перебор?
Курихара: Не уверен, что родители стали бы придумывать такие ухищрения просто ради того, чтобы ребенок сходил в ванну незамеченным.
Автор: Да, действительно. Ты прав. Извини… Просто что-то вдруг в голову пришло… Забудь.
Только что я с жаром излагал свою теорию, но теперь почувствовал себя неловко. Действительно, мое воображение чересчур разыгралось. Я уже собирался закончить разговор, когда из трубки донеслось бормотание Курихары.
Курихара: Лаз… Погоди-ка. Если твое предположение верно, то эта комната…


Автор: Ты что-то понял?
Курихара: Да нет, просто твои слова натолкнули меня на одну мысль. Кстати, я правильно помню, изначально в этом доме жили трое: муж, жена и ребенок?
Автор: Да.
Курихара: Получается, одна кровать лишняя. Супруги спали в спальне на втором этаже, а ребенок – в детской. Для кого тогда кровать на первом этаже?
Автор: Может быть, для гостей?
Курихара: Да, скорее всего. Уж не знаю, кем гости приходились владельцам, но в доме они бывали часто. Есть у меня одна теория, которая позволяет объяснить все: и детскую без окон, и лаз, про который ты говорил, и регулярные визиты гостей. Наверное, она покажется тебе дикой… Не воспринимай то, что я сейчас скажу, серьезно. Считай это просто плодом моей больной фантазии.
Первый этаж

Больная фантазия
Курихара: Раньше в этом доме жила супружеская пара с ребенком. Причем ребенка держали в его комнате взаперти с определенной целью. Периодически родители приглашали домой гостей: общались с ними в гостиной, накрывали для них стол. Муж подливал гостю спиртное, тот с удовольствием пил. Когда гость был уже порядком пьян, жена предлагала: «Может быть, вы останетесь переночевать? У нас есть свободная спальня». А муж добавлял: «Я набрал для вас горячей воды в ванну. Пожалуйста, оставайтесь».
Второй этаж

Первый этаж

Тогда гостя вели в ванную на втором этаже. Стоило ему зайти внутрь, как женщина подавала сигнал ребенку, находившемуся в своей комнате. Он брал с собой некий предмет, пролезал в отверстие в полу детской и по тайному проходу на первом этаже проникал в ванную. А потом…
Вонзал в спину гостя орудие убийства.
Автор: Что?! С чего ты это взял?..
Курихара: Я же говорю, это просто мое больное воображение. Голый, безоружный, с затуманенным от алкоголя сознанием, гость плохо соображал и не мог сопротивляться. Ребенок раз за разом наносил ему удары в спину. Кровь лилась рекой. Гость, так и не успев понять, что произошло, замертво падал на пол. В общем, этот дом был построен специально для убийств.
Автор: Не может быть… Ты шутишь?!
Курихара: В целом да. Но, может быть, я и прав. Ты ведь наверняка и сам читал в интернете о всяких загадочных происшествиях? В сети выкладывают кучу таких историй: невероятных, поражающих своей жестокостью. Больше похожих на плохие ужастики, чем на реальные случаи. В мире есть безумцы, способные на такое, что нам с тобой даже представить себе сложно. Например, супружеская пара, которая особым образом спроектировала дом и использовала ребенка, чтобы совершать убийства его руками… Лично я могу допустить, что такое возможно.
Автор: Да, но… Если даже ты прав… Зачем им это?
Курихара: Хороший вопрос. Нет смысла разрабатывать такой хитроумный план ради того, чтобы избавиться от одного конкретного человека. Боюсь, они совершали убийства регулярно. В таком случае ими вряд ли двигали личные мотивы. Скорее, они просто выполняли заказы.
Автор: Заказы?
Курихара: Да, в сети полно таких сайтов: на них можно разместить свой «заказ» и найти исполнителя, чтобы «делегировать» ему совершение убийства. Противозаконная активность в интернете уже давно стала серьезной проблемой. В большинстве случаев заказчиков просто обманывают и разводят на деньги, но я слышал, что найти реального исполнителя тоже возможно. Берут недорого – 200–300 тысяч йен[2]. Это, так сказать, «киллеры-любители», но, как я слышал, со временем их методы становятся все более разнообразными и изощренными.
Автор: То есть получается, что этот дом – место работы двух наемных убийц?
Курихара: Такое возможно. Хотя, повторюсь, это просто мои безумные фантазии.
Супружеская пара киллеров, которая использовала ребенка, чтобы совершать убийства. Это уж слишком даже для самой безумной фантазии.
Курихара: Но давай разовьем эту мысль дальше. Ты упоминал, что шкаф в детской скрывал лаз в полу. А ведь в этой комнате есть еще один шкаф. Можно предположить, что под ним тоже находится отверстие.
Автор: Пожалуй…
Курихара: И куда же можно через него попасть?
Автор: Хм… В кладовку.
Курихара: Именно, в кладовку. Получается, в этом доме был еще и проход, благодаря которому можно было легко избавляться от трупов.
Автор: Каким образом?
Второй этаж

Первый этаж

Курихара: Вернемся к сцене убийства. Допустим, все прошло гладко. Но нельзя же оставить труп лежать в ванной. Необходимо избавиться от тела так, чтобы его никто не увидел. И снова нашу парочку киллеров выручает тайный проход в детскую. Отверстие лаза узкое, тело взрослого человека в него не пройдет. Поэтому супруги пилой или чем-то еще разделывают труп на небольшие куски, которые можно легко протолкнуть через дыру в полу. Настолько маленькие, чтобы ребенку было не слишком тяжело их перетаскивать.
Автор: Что?!
Курихара: Супруги по кускам сбрасывают тело в отверстие. У ребенка уходит несколько часов на то, чтобы по одному перенести их в свою комнату. Там он бросает их в другое отверстие. Так останки перемещают из ванной в кладовку. А рядом с ней расположен гараж. Расчлененное тело засовывают в багажник машины, родители отвозят его в лес неподалеку и оставляют там.
Действительно, ведь одним из главных достоинств этого дома было его расположение: недалеко от станции, но при этом в зеленом районе, рядом с лесом.
Курихара: Получается, сами убийства и все дальнейшие манипуляции с трупами происходили в помещениях, где нет окон. Никаких рисков, что с улицы что-то увидят. Нашим убийцам ничего не мешало делать свое грязное дело хоть круглый год, в любое время дня и ночи. Ну как, что ты об этом думаешь?

Курихара рассуждал уверенно, со знанием дела, поэтому я просто молча слушал его и старался лишний раз не перебивать, но теперь все-таки решился озвучить свои сомнения.
Автор: Хм-м-м… Предположим, ты прав… Но зачем придумывать все эти ухищрения с тайными проходами? Достаточно задернуть шторы, и никто ничего не увидит.
Курихара: А, насчет этого. Действительно, когда люди хотят скрыть происходящее в доме от посторонних глаз, они задергивают шторы. Логично ожидать, что они сделают так и перед тем, как совершить убийство. Но никому и в голову не придет, что преступление может произойти в доме, где все окна открыты.
Конец ознакомительного фрагмента.
Текст предоставлен ООО «Литрес».
Прочитайте эту книгу целиком, купив полную легальную версию на Литрес.
Безопасно оплатить книгу можно банковской картой Visa, MasterCard, Maestro, со счета мобильного телефона, с платежного терминала, в салоне МТС или Связной, через PayPal, WebMoney, Яндекс.Деньги, QIWI Кошелек, бонусными картами или другим удобным Вам способом.
Примечания
1
В традиционном японском доме ванная комната обычно разделяется на две зоны: предбанник, где нужно раздеться и оставить одежду перед водными процедурами, и собственно ванна или душевая. (Здесь и далее прим. пер.)
2
Около 130–200 тысяч рублей по курсу, актуальному на момент выхода книги в Японии.
Приобретайте полный текст книги у нашего партнера: